Vuokrataan toimistotilat - Helsinki
Eteläranta 12, Kaartinkaupunki, 00130 Helsinki #10761802
Toimistotilaa merinäköalalla edustavalla paikalla Helsingin Kaartinkaupungissa.
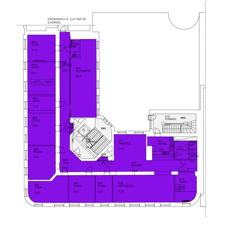
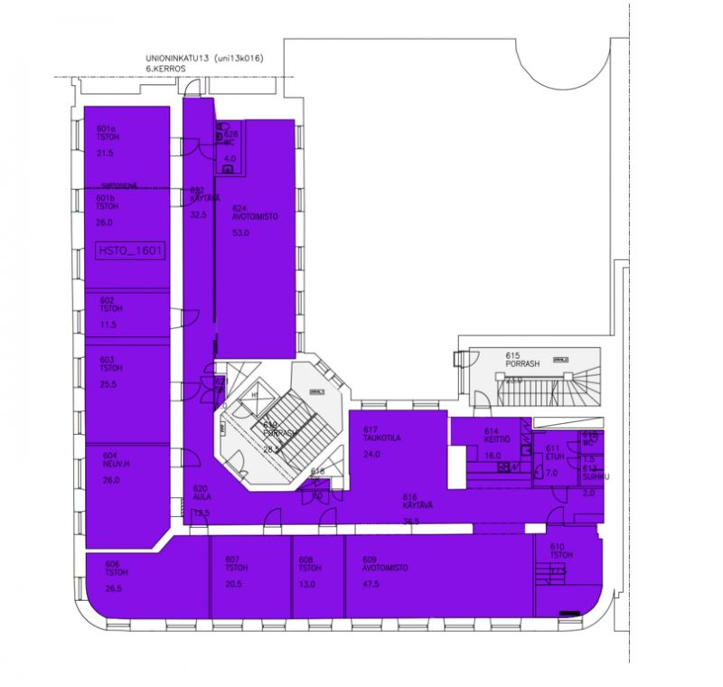
Tämä 210,5m2 toimisto sijaitsee kiinteistön 6. kerroksessa. Toimistossa on huoneita, avotilaa sekä omat keittiö-, wc- ja suihkutilat. Tilasta on upea merinäköala. Tila remontoidaan uudelle vuokralaiselle. Tila voidaan jakaa kahdelle eri käyttäjälle.
Eteläranta 12/Unioninkatu 13 sijaitsee Kauppatorin läheisyydessä, Wanhan Kauppahallin vieressä. Esplanadin alueen ja keskustan monipuoliset palvelut kävelyetäisyydellä. Kiinteistössä on suihku- ja pukuhuonetilat työmatkapyöräilijöitä varten.
Kysy lisää numerosta 044 723 4700 tai info@bref.fi. Palvelumme on tilanhakijoille ilmainen.
Hissi
Bureau Real Estate Finland Oy
Lars Sonckin kaari 16, 02600 Espoo
Näytä puhelinnumero
0447234700
Bureau Real Estate Finland Oy
https://www.bref.fi