Vuokrataan toimistotilat - Helsinki
Kiviaidankatu 2, Lauttasaari, 00210 Helsinki #10761723
Remontoitua toimistotilaa Lauttasaaressa
Osoite
Kiviaidankatu 2, 00210 Helsinki
Tilatyyppi
Toimistotilaa
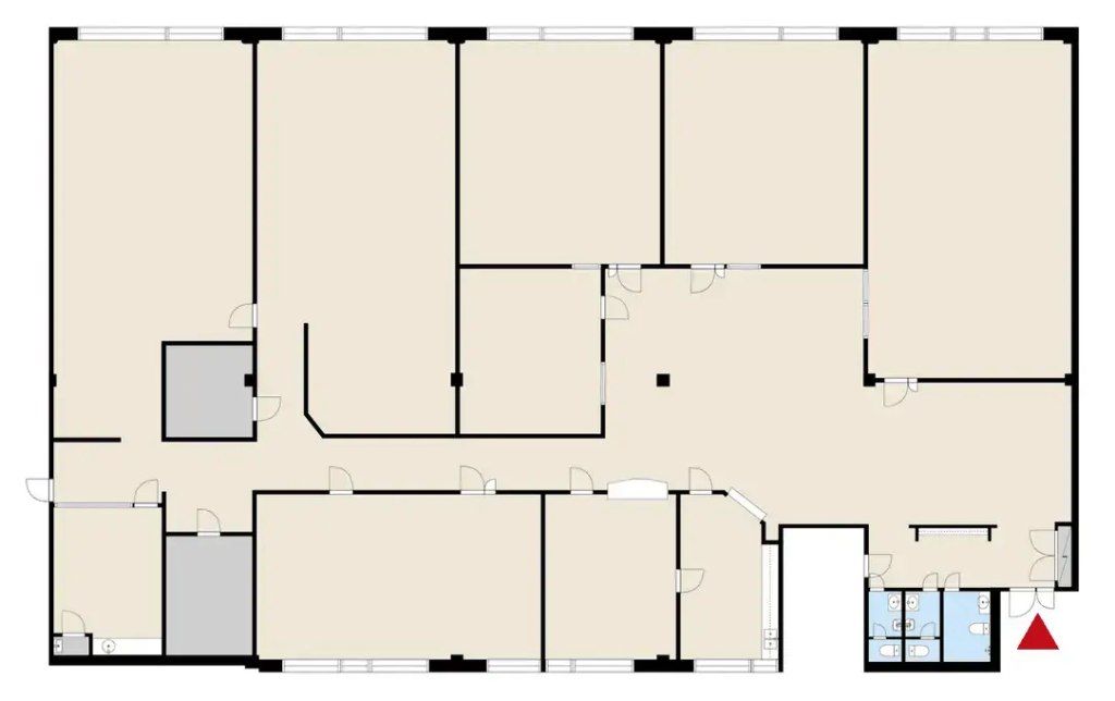
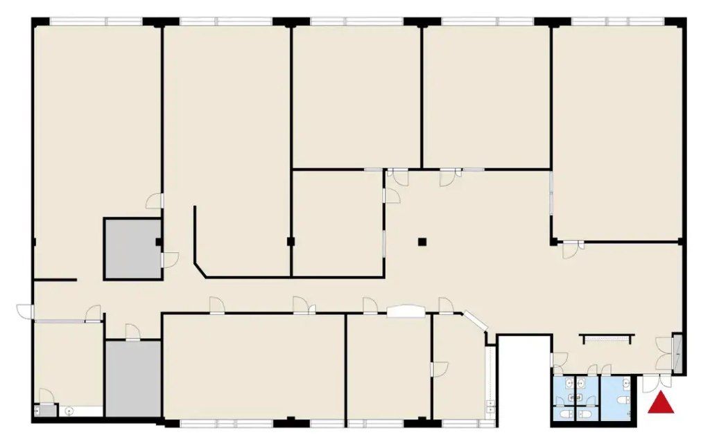
712 m2
Pysäköinti
Kyllä
Muuta
Vuokrattavana 712m2 toimisto Lauttasaaren sydämessä. Tila saneerataan ja viimeistellään vuokralaisen toiveiden mukaiseksi.
Aikoinaan Helsingin Villakehräämönä tunnettu kiinteistö, Kiviaidankatu 2, on yksi Lauttasaaren vanhimmista teollisuusrakennuksista. Rakennuksen näkyvin osa lienee 62 metriä korkea savupiippu. Tänä päivänä kiinteistö palvelee modernina toimistotalona. Kiinteistöstä on myös tavarahissi.
Lauttasaaren metroasemalle on vain 900m matka, jonne kulkee bussi rakennuksen edustalta, ja oman auton käyttäjille on pysäköintiä pihalla ja hallissa. Lähiympäristöstä löydät kaikki tarvittavat palvelut, kuten lounasravintolat, kahvilat ja ruokakaupat.
Sisäkuvat ovat havainnekuvia.
Tervetuloa tutustumaan! Kysythän myös muita sopivia kohteita, palvelumme on vuokralaiselle täysin veloitukseton.
Aikoinaan Helsingin Villakehräämönä tunnettu kiinteistö, Kiviaidankatu 2, on yksi Lauttasaaren vanhimmista teollisuusrakennuksista. Rakennuksen näkyvin osa lienee 62 metriä korkea savupiippu. Tänä päivänä kiinteistö palvelee modernina toimistotalona. Kiinteistöstä on myös tavarahissi.
Lauttasaaren metroasemalle on vain 900m matka, jonne kulkee bussi rakennuksen edustalta, ja oman auton käyttäjille on pysäköintiä pihalla ja hallissa. Lähiympäristöstä löydät kaikki tarvittavat palvelut, kuten lounasravintolat, kahvilat ja ruokakaupat.
Sisäkuvat ovat havainnekuvia.
Tervetuloa tutustumaan! Kysythän myös muita sopivia kohteita, palvelumme on vuokralaiselle täysin veloitukseton.
Vapautuu
Kysy
Kerros
3
Ota yhteyttä
Tuloskiinteistöt Oy
Rikhardinkatu 2 B 5, 00130 Helsinki
Näytä puhelinnumero
(09) 6841 620
Otto Ahtola
Commercial Real Estate Advisor
Näytä puhelinnumero
+358 40 042 2830
Jorma Ryynänen
Commercial Real Estate Advisor LKV, LVV
Näytä puhelinnumero
+358 40 708 4064
Pyydä lisätietoa
