Vuokrataan toimistotilat - Helsinki
Vattuniemenranta 2, Lauttasaari, 00210 Helsinki #10761715
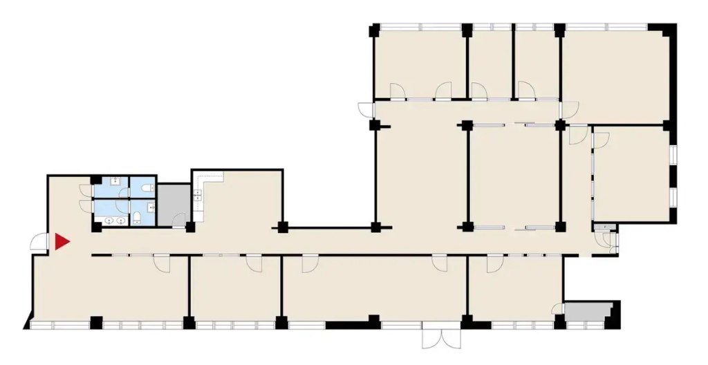
Siistiä toimistotilaa Lauttasaaressa
Osoite
Vattuniemenranta 2, 00210 Helsinki
Tilatyyppi
Toimistotilaa
339 m2
Pysäköinti
Kyllä
Muuta
Vuokrattavana 339m2 toimistotila merellisessä Lauttasaaressa. Tila voidaan räätälöidä käyttäjän toiveiden mukaiseksi.
Kiinteistö sijaitsee hyvien kulkuyhteyksien päässä upealla paikalla meren rannalla. Alakerran lounasravintolan lisäksi ympärillä on useita muita ravintoloita ja palveluita. Metroasema on vajaan kilometrin päässä.
Tervetuloa tutustumaan, varaathan välittäjältä oman esittelyaikasi. Voit kysyä meiltä myös muita sopivia vaihtoehtoja, kauttamme löydät juuri Teidän tarpeisiinne sopivat tilat.
Palvelumme on tilanhakijalle veloitukseton!
Kiinteistö sijaitsee hyvien kulkuyhteyksien päässä upealla paikalla meren rannalla. Alakerran lounasravintolan lisäksi ympärillä on useita muita ravintoloita ja palveluita. Metroasema on vajaan kilometrin päässä.
Tervetuloa tutustumaan, varaathan välittäjältä oman esittelyaikasi. Voit kysyä meiltä myös muita sopivia vaihtoehtoja, kauttamme löydät juuri Teidän tarpeisiinne sopivat tilat.
Palvelumme on tilanhakijalle veloitukseton!
Vapautuu
Kysy
Kerros
1
Ota yhteyttä
Tuloskiinteistöt Oy
Rikhardinkatu 2 B 5, 00130 Helsinki
Näytä puhelinnumero
(09) 6841 620
Otto Ahtola
Commercial Real Estate Advisor
Näytä puhelinnumero
+358 40 042 2830
Jorma Ryynänen
Commercial Real Estate Advisor LKV, LVV
Näytä puhelinnumero
+358 40 708 4064
Pyydä lisätietoa
