Vuokrataan tuotantotilat, varastotilat - Orimattila
Kaitilantie 30, 16300 Orimattila #10761680
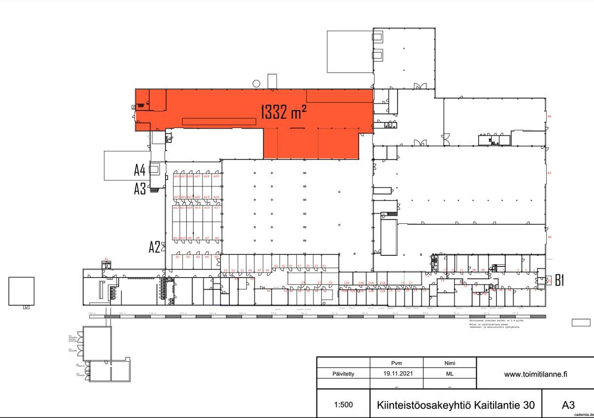
Vuokrataan tuotanto- tai varastotila 1332 m2. Neliöhinnaltaan erittäin edullisen puolilämpimän tilan iso nosto-ovi (aukko L3525xK4060 mm) mahdollistaa sisäänajon isommallakin kalustolla. Tila on kokonaan sprinklattu.
Kaitilan vaatetehtaana tunnettu kiinteistö on rakennettu useassa vaiheessa 1960- ja 1970-luvuilla. Teollisuuskiinteistön kokonaispinta-ala on 10 000 m2 ja siinä on sprinklerijärjestelmä. Piha-alue on asfaltoitu.
Lisätiedot 020 7290 710. Lisää kohteita www.premises.fi
Kohteella ei ole lain edellyttämää energiatodistusta tai energialuokka ei tiedossa.Kerros: katutaso
CRE PREMISES
Puh. Näytä puhelinnumero 020 7290 710
Vantaankoskentie 14
01670 VANTAA
