Vuokrataan toimistotilat - Oulu
Tyrnäväntie 14, 90400 Oulu #10761569
Vuokrataan toimistotilaa Paten Tullin kiinteistöstä Limingantullista!
Osoite
Tyrnäväntie 14, 90400 Oulu
Tilatyyppi
Toimistotilaa
240 - 517 m2
Tilajako
Jaettavissa
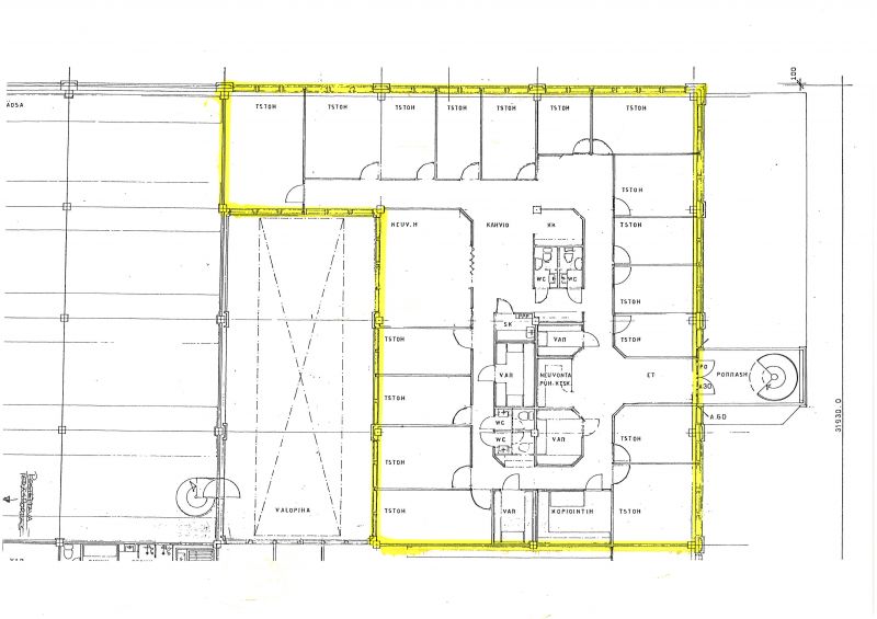
Toisen kerroksen huoneistossa on eri kokoisia työhuoneita 16kpl. Lisäksi 2 neuvotteluhuonetta. Vessoja löytyy 4kpl.
Pohjapiirros
Vuokra
12,00€/m²/kk+alv. Lisäksi käyttösähkö ja vesi
Vuokraan sisältyy lämpö
Pysäköinti
Piha-alueella runsaasti
Kulkuyhteydet
Bussit Limingantietä pitkin
Muuta
Saatavana lisäksi varastotilaa, "valopihalta" 93m² ja kellarista 60m².
Koneellinen ilmanvaihto tulo- ja poisto.
Koneellinen ilmanvaihto tulo- ja poisto.
Vapautuu
Heti
Kerros
2 / 2
Energiatehokkuusluokka
Ei lain edellyttämää energiatodistusta
Näkyvällä paikalla
Jaettavissa
Liitetiedostot
Ota yhteyttä
Pohjois-Suomen Toimitilat Oy
Sepänkatu 20, 90100 Oulu
Pekka Valkola
Näytä puhelinnumero
044 311 0555
Pyydä lisätietoa
