Vuokrataan - Helsinki
Takkatie 7, Pitäjänmäki, Helsinki #10761538
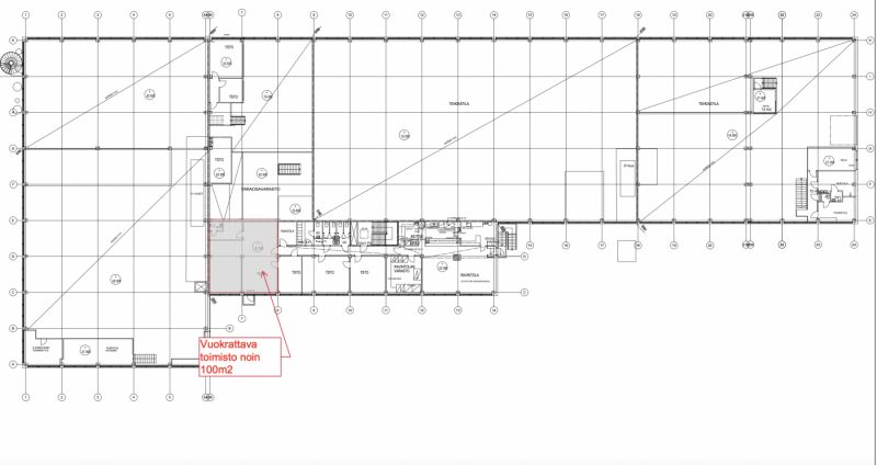
Pitäjänmäki toimisto ym käyttöön soveltuva monitoimitila 2.krs. Kiinteistössä laajakaista. Yksi parkkipaikka pihalta.
Osoite
Takkatie 7, Helsinki
Vuokra
850.00 e/kk
Vapautuu
Kysy
Huoneiden lukumäärä
1
Energiatehokkuusluokka
Ei lain edellyttämää energiatodistusta
Ota yhteyttä
RHG Real Estate
Hämeenkatu 2 B20, 20500 Turku
Näytä puhelinnumero
020 734 4020
Risto Taimela
Näytä puhelinnumero
0400 674 900
Pyydä lisätietoa
