Vuokrataan toimistotilat - Helsinki
Kuparitalo, Töölönkatu 4, Etu-Töölö, 00100 Helsinki #10761402
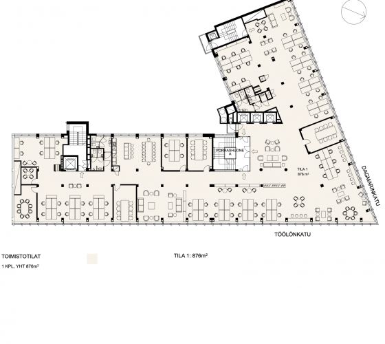
Vuokrattavana modernia toimistotilaa.
Osoite
Töölönkatu 4, 00100 Helsinki
Tilatyyppi
Toimistotilaa
876 m2
Kiinteistö
Eduskuntatalon vieressä vuokrattavana modernia toimistotilaa. Kiinteistössä kaukolämpö, koneellinen ilmanvaihto ja jäähdytys.
Sijainti
Etu-Töölö, Helsinki
Pysäköinti
5 autohallipaikkaa, 14 pihapaikkaa. Autopaikkoja vuokrattavissa naapurikiinteistöltä ja Finlandiatalon parkkihallista.
Palvelut
- Aulapalvelut
- Edustustilat
-Lounasravintola
- Vuokrattavat neuvottelutilat
- Sauna
- Edustustilat
-Lounasravintola
- Vuokrattavat neuvottelutilat
- Sauna
Kulkuyhteydet
Loistavat kulkuyhteydet
Vapautuu
Heti
Rakennusvuosi
1957
Kerros
6 / 8
Energiatehokkuusluokka
Ei lain edellyttämää energiatodistusta
Näkyvällä paikalla
Hissi
Ota yhteyttä
REALIUM OY LKV
Tammasaarenkatu 1, 00180 Helsinki
Vaihde:
Näytä puhelinnumero
010 326 346
Tuomo Mäkelä
tuomo.makela@realium.fi
p.
Näytä puhelinnumero
044 050 1158
Joel Keto
joel.keto@realium.fi
p.
Näytä puhelinnumero
045 317 0330
KAIKKI TILAVAIHTOEHDOT KERRALLA!
SOITA - MEILAA JA TILAA NÄYTTÖ!
Ilmainen palvelu tilanhakijoille.
Kartoitamme parhaat tilavaihtoehdot.
Kaikki kohteet eivät ole netissä.
Pyydä lisätietoa
