Vuokrataan toimistotilat - Helsinki
Köydenpunojankatu 8 G, Kamppi, 00180 Helsinki #10761124
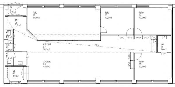
Sisäpihan toimisto-/työtila
Osoite
Köydenpunojankatu 8 G, 00180 Helsinki
Tilatyyppi
Toimistotilaa
163 m2
Kiinteistö
Sisäpihan toimisto-/työtila.
Ei sovellu ravintola- tai kahvilatoimintaan.
Autopaikkoja vuokrattavissa P-hallissa. Tila on Alviton.
Ei sovellu ravintola- tai kahvilatoimintaan.
Autopaikkoja vuokrattavissa P-hallissa. Tila on Alviton.
Pysäköinti
Mahdollisuus 2-3 autopaikkaan P-hallissa + kadunvarsipysäköinti/yrityspysäköinti
Palvelut
Mm. Ruoholahden runsaat palvelut pienen kävelymatkan päässä
Kulkuyhteydet
Bussit, raitiotie
Vapautuu
Kysy
Kerros
1
Ota yhteyttä
TopReal
Hietalahdenranta 17 B, 00180 Helsinki
Näytä puhelinnumero
09 6227 7852
Soita ja kysy lisää, tai tutustu www-sivuihimme!
http://www.topreal.fiPyydä lisätietoa
