Vuokrataan toimistotilat - Espoo
Quartetto Business Park, Linnoitustie 4, Leppävaara, 02600 Espoo #10760532
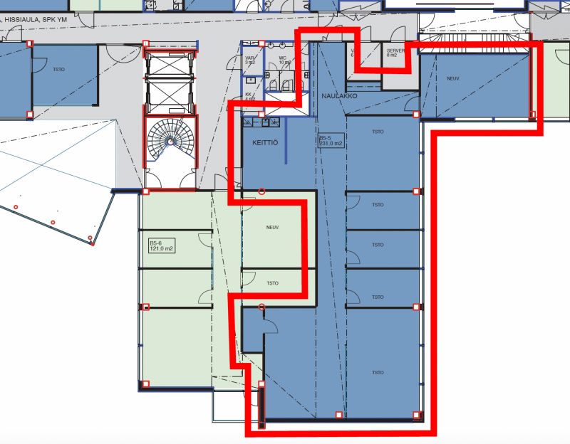
Moderni 231 m² toimistotila viihtyisässä business parkissa Leppävaarassa
Osoite
Linnoitustie 4, 02600 Espoo
Tilatyyppi
Toimistotilaa
231 m2
Pohjapiirros
Kiinteistö
Quartetto Business Park on tehokas ja viihtyisä yrityspuisto. Alto ja Violin ovat huippuesimerkkejä Quartetto Business Parkin taloista. Yrityspuiston toimitilakonsepti ja siihen liittyvä palvelukokonaisuus on suunniteltu vaativan yrityksen tarpeisiin.
Kiinteistössä on laajat ja monipuoliset nykyaikaisen Business Parkin palvelut.
- Aulapalvelu
- Lounasravintola
- Saunatilat
- Vuokrattavia neuvottelutiloja
Toimistohuoneistojen pinta-alat vaihtelevat 35 neliöstä 1 005 neliöön. Huoneistot ovat muunneltavissa huonekonttorista combikonttoriksi tai avotilaksi. Kiinteistössä on myös erillisiä kokous- ja edustustiloja.
Quartetto sijaitsee erinomaisella ja näkyvällä paikalla Etelä-Leppävaaran toimistoalueella Kehä I:n tuntumassa. Kauppakeskus Sellon palvelut sekä juna-asema ovat kävelymatkan etäisyydellä. Alueen hyviä julkisen liikenteen palveluja täydentävät kohteen hyvät henkilökunnan pysäköintitilat.
Ilmoituksen sisäkuvat ovat yleiskuvia kiinteistön eri tiloista.
Kiinteistössä on laajat ja monipuoliset nykyaikaisen Business Parkin palvelut.
- Aulapalvelu
- Lounasravintola
- Saunatilat
- Vuokrattavia neuvottelutiloja
Toimistohuoneistojen pinta-alat vaihtelevat 35 neliöstä 1 005 neliöön. Huoneistot ovat muunneltavissa huonekonttorista combikonttoriksi tai avotilaksi. Kiinteistössä on myös erillisiä kokous- ja edustustiloja.
Quartetto sijaitsee erinomaisella ja näkyvällä paikalla Etelä-Leppävaaran toimistoalueella Kehä I:n tuntumassa. Kauppakeskus Sellon palvelut sekä juna-asema ovat kävelymatkan etäisyydellä. Alueen hyviä julkisen liikenteen palveluja täydentävät kohteen hyvät henkilökunnan pysäköintitilat.
Ilmoituksen sisäkuvat ovat yleiskuvia kiinteistön eri tiloista.
Pysäköinti
Autopaikkoja vuokrattavissa kiinteistön kellarikerroksen parkkihallista sekä piha-alueelta. Asiakaspaikkoja pihalla.
Kulkuyhteydet
Bussipysäkki alle 100 m, Juna-asema 200 m, Lentoasema 14,3 km
Vapautuu
Heti
Rakennusvuosi
2001
Kerros
5 / 5
Energiatehokkuusluokka
Ei lain edellyttämää energiatodistusta
Näkyvällä paikalla
Hissi
Ota yhteyttä
ScanReal Oy LKV
Opus Business Park
Hitsaajankatu 24
00810 Helsinki
info@scanreal.fi
Puh:
Näytä puhelinnumero
020 730 8830
Sopivat toimitilat yhdellä otolla!
Kartoitamme toimitilatarpeesi ja etsimme yrityksellesi parhaiten sopivat vapaat toimitilat. Koska vuokranantajat maksavat palvelumme, on tämä yrityksellesi veloituksetonta.
OTA YHTEYTTÄ - SOVI NÄYTTÖ!
Kaikki kohteemme eivät ole netissä, kerro tilatarpeesi niin kartoitamme vaihtoehdot.
Palvelumme on tilanhakijalle ilmainen
Pyydä lisätietoa
