Vuokrataan toimistotilat - Helsinki
Mannerheimintie 15a, Keskusta, 00100 Helsinki #10760338
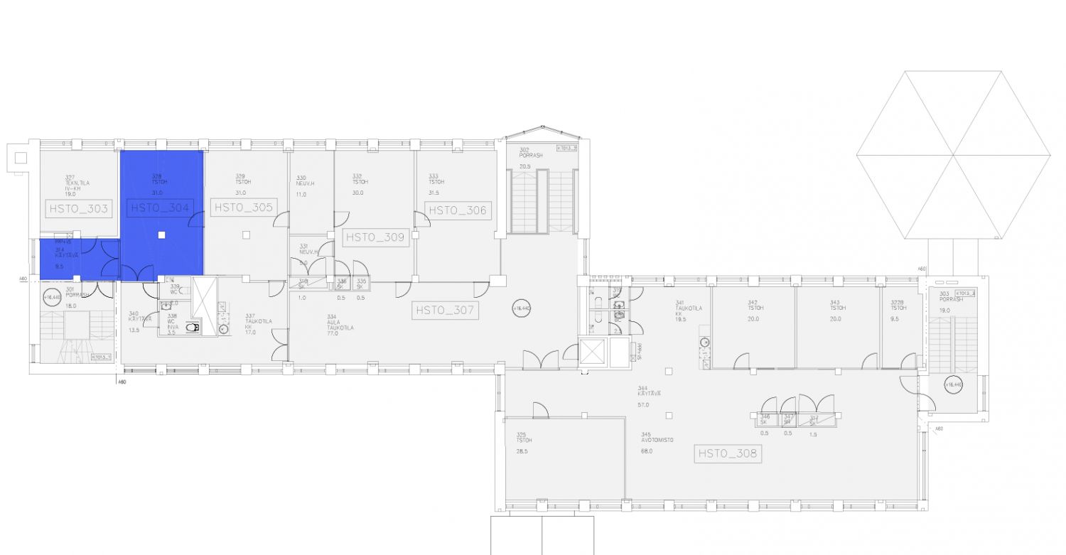
Vuokrattavana siistiä, valoisaa toimistotilaa Sakkaroosin Tiilitalossa.
Osoite
Mannerheimintie 15a, 00100 Helsinki
Tilatyyppi
Toimistotilaa
47 m2
Kiinteistö
Vuokrattavana siistiä, valoisaa toimistotilaa, jossa keittiö yhteiskäytössä.
Sijainti
Taka-Töölö, Helsinki
Pysäköinti
Pysäköintitilaa lähellä sijaitsevalla pysäköintialueella.
Palvelut
Kaikki keskustan palvelut lähietäisyydellä.
Kulkuyhteydet
-Raitiovaunu
-Bussi
-Oma auto
-Bussi
-Oma auto
Vapautuu
Heti
Kerros
3
Energiatehokkuusluokka
Ei lain edellyttämää energiatodistusta
Näkyvällä paikalla
Hissi
Ota yhteyttä
REALIUM OY LKV
Tammasaarenkatu 1, 00180 Helsinki
Vaihde:
Näytä puhelinnumero
010 326 346
Tuomo Mäkelä
tuomo.makela@realium.fi
p.
Näytä puhelinnumero
044 050 1158
Joel Keto
joel.keto@realium.fi
p.
Näytä puhelinnumero
045 317 0330
KAIKKI TILAVAIHTOEHDOT KERRALLA!
SOITA - MEILAA JA TILAA NÄYTTÖ!
Ilmainen palvelu tilanhakijoille.
Kartoitamme parhaat tilavaihtoehdot.
Kaikki kohteet eivät ole netissä.
Pyydä lisätietoa
