Vuokrataan toimistotilat - Helsinki
Hiomotie 3, Pitäjänmäki, 00380 Helsinki #10760290
Vuokrattavana toimistotilaa Helsingin Pitäjänmäessä.
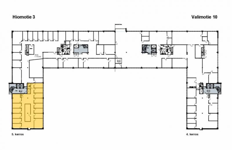
Tämä viihtyisä 267m2 toimistotila sijaitsee kiinteistön 5. kerroksessa. Toimistossa on avotilaa, toimistohuoneita, neuvotteluhuone sekä tilava keittiö ja omat wc-tilat. Tilassa on miellyttävä matalanukkainen tekstiilimatto, joka luo viihtyisyyttä ja toimii myös vaimentavana elementtinä.
Hiomotie 3 sijaitsee Helsingin Pitäjänmäellä, hyvien liikenneyhteyksien varrella. Tämä toimistorakennus koostuu kahdesta eri kiinteistöstä (Valimotie 10 ja Hiomotie 3) ja sisältää kuusi kerrosta, joista on saatavilla sekä toimisto-, tuotanto- ja konesalitilaa. Kiinteistössä koneellinen ilmanvaihto ja huonekohtainen jäähdytystekniikka, kulunvalvonta, turvajärjestelmät, sekä nykyaikaiset tietoliikenneratkaisut. Valimotie 13:n aulapalvelu palvelee myös tämän kiinteistön vuokralaisia. Alueella on useita hyviä lounasravintoloita ja päivittäistavarakauppa.
Kysy lisää numerosta 044 723 4700 tai info@bref.fi. Palvelumme on tilanhakijoille ilmainen.
Hissi
Bureau Real Estate Finland Oy
Lars Sonckin kaari 16, 02600 Espoo
Näytä puhelinnumero
0447234700
Bureau Real Estate Finland Oy
https://www.bref.fi