Vuokrataan tuotantotilat, varastotilat - Helsinki
Valokaari 8, Suutarila, 00750 Helsinki #10760265
Vuokralle vapautunut erittäin siistiä korjaamo-/ varastotilaa + asiakaspalvelutilaa Suutarilassa
Osoite
Valokaari 8, 00750 Helsinki
Tilatyyppi
Tuotantotilaa
5243 m2
Varastotilaa
5243 m2
Yhteensä
5243 m2
Tilajako
Jaettavissa
Toimitila on mahdollista jakaa 2-3 toimijalle.
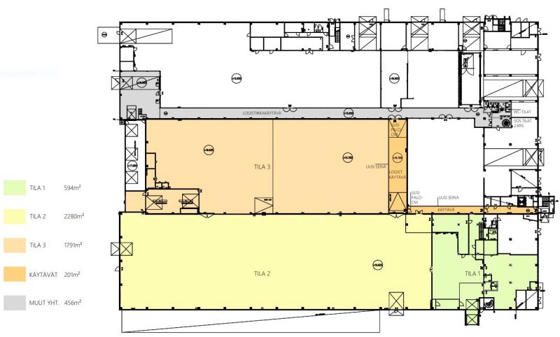
Pohjapiirros
Tila soveltuu
Autokorjaamo
Kiinteistö
Valokaari 8 on edustava ja täyden palvelun kiinteistö, jossa mm. toimii laadukas lounasravintola ja kuntosali. Kohde on laajasti peruskorjattu vuoden 2017 aikana.
Vuokralaisten käytettävissä on neuvottelutiloja sekä saunoja.
Vuokrattava ala yhteensä 5243 m2. Toimitila on mahdollista jakaa 2-3 toimijalle.
Sosiaali-ja neuvottelutilat sijaitsevat rakennuksen toisessa kerroksessa.
Autopaikkoja n. 120 kpl.
Vuokralaisten käytettävissä on neuvottelutiloja sekä saunoja.
Vuokrattava ala yhteensä 5243 m2. Toimitila on mahdollista jakaa 2-3 toimijalle.
Sosiaali-ja neuvottelutilat sijaitsevat rakennuksen toisessa kerroksessa.
Autopaikkoja n. 120 kpl.
Sijainti
Valokaari 8 sijaitsee näkyvällä paikalla Kehä III:n varrella Helsingin Suutarilassa.
Vapautuu
Heti
Jaettavissa
Ota yhteyttä
Conorin
Toimitilojen vuokraus ja myynti
Näytä puhelinnumero
09 - 612 2230
Toimisto
Valimotie 17-19
Helsinki
Kaikki vapaat tilamme:
vapaat.toimitilat.fi/conorin
Pyydä lisätietoa
