Vuokrataan toimistotilat - Helsinki
Valimotie 13 B, Pitäjänmäki, 00380 Helsinki #10760145
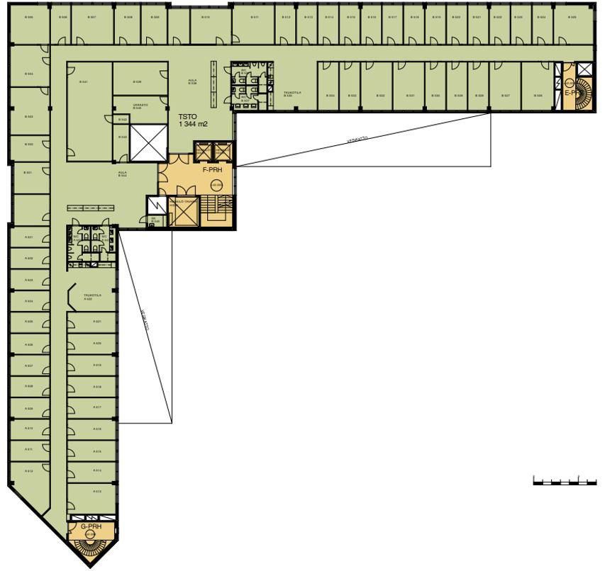
Toimistotila, joka käsittää koko rakennuksen viidennen kerroksen. Tila sisältää sekä yksittäisiä toimistohuoneita että runsaasti avointa tilaa. Mahdollista vuokrata myös osa kerroksesta, esimerkiksi jakamalla tila kahteen eri siipeen.
Persoonallinen, entinen tehdaskiinteistö, joka -90 luvulla täysin saneerattu toimistokiinteistöksi. Kiinteistö tarjoaa monipuoliset palvelut kuten: aulapalvelut, vuokrattavat neuvottelutilat, saunan ja kuntosalin. Kiinteistössä kaksi tavarahissiä ja lastausalue autohallissa. Kiinteistössä toimii suosittu lounasravintola Factory, johon tullaan kauempaakin lounaalle. Vapaana toimistotilaa alkaen 320m2.
Lisätietoja numerosta 020 7290 710. Lisää kohteita osoitteessa www.premises.fi.
Kohteella ei ole lain edellyttämää energiatodistusta.Kerros: 5
CRE PREMISES
Puh. Näytä puhelinnumero 020 7290 710
Vantaankoskentie 14
01670 VANTAA
