Vuokrataan toimistotilat - Helsinki
Kumpulantie 15, Vallila, 00520 Helsinki #10759819
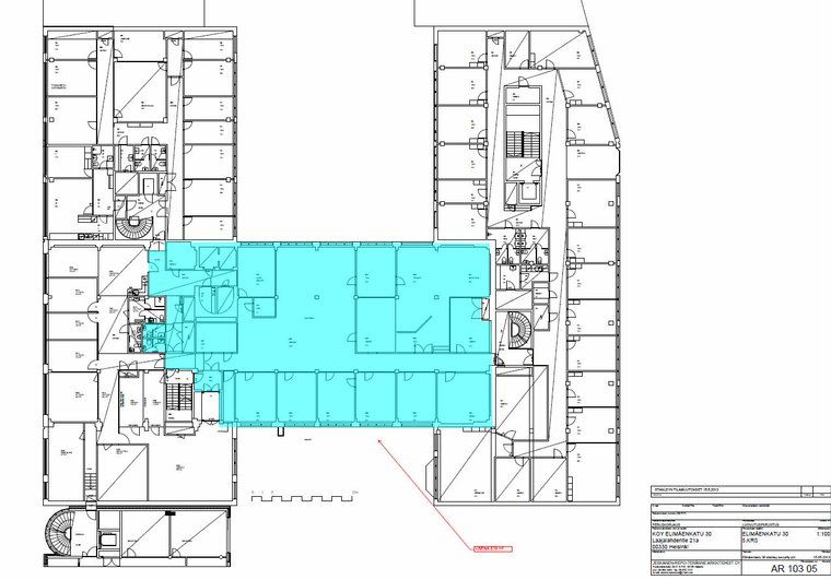
Toimistotilaa Helsingin Vallilassa
Osoite
Kumpulantie 15, 00520 Helsinki
Tilatyyppi
Toimistotilaa
519 m2
Muuta
Erinomaisella sijainnilla laadukasta toimistotilaa Helsingin Vallilassa. Vuokrattava tila on 519 m2 valoisa toimisto. Tila muokataan ja saneerataan uuden vuokralaisen tarpeiden mukaan.
Tervetuloa tutustumaan, varaathan välittäjältä oman esittelyaikasi. Kysy meiltä muitakin juuri teille sopivia vaihtoehtoja - meidän kautta saat täysin teidän tarpeisiinne räätälöidyt tilat. Palvelumme on tilanhakijalle veloitukseton!
Tervetuloa tutustumaan, varaathan välittäjältä oman esittelyaikasi. Kysy meiltä muitakin juuri teille sopivia vaihtoehtoja - meidän kautta saat täysin teidän tarpeisiinne räätälöidyt tilat. Palvelumme on tilanhakijalle veloitukseton!
Vapautuu
Kysy
Kerros
5
Ota yhteyttä
Tuloskiinteistöt Oy
Rikhardinkatu 2 B 5, 00130 Helsinki
Näytä puhelinnumero
(09) 6841 620
Nina Meyke
Commercial Real Estate Advisor
Näytä puhelinnumero
+358 50 466 1519
Otto Ahtola
Commercial Real Estate Advisor
Näytä puhelinnumero
+358 40 042 2830
Pyydä lisätietoa
