Vuokrataan toimistotilat - Helsinki
Eliel Saarisen Tie 2, Pohjois-Haaga, 00400 Helsinki #10759663
Toimistotilaa hyvällä sijainnilla Helsingin Pohjois-Haagassa.
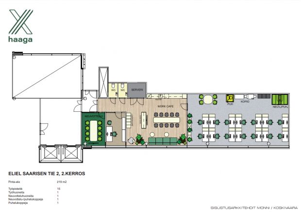
Tämä 219m2 toimistotila sijaitsee kiinteistön 2. kerroksessa. Isot ikkunat tuovat tilaan runsaasti luonnonvaloa. Toimistossa on avotilaa, huoneita, keittiöpiste ja wc-tilat. Kuvat ovat 2. kerroksen toimistotiloista sekä kiinteistön yleisistä tiloista. Tilaa on mahdollista muunnella vuokralaisen tarpeiden mukaan.
Eliel Saarisen tie 2 eli X Haaga on vuonna 2000 valmistunut toimistokiinteistö Pohjois-Haagassa. Kiinteistö sijaitsee näkyvällä paikalla Hämeenlinnanväylän varrella. Kiinteistössä on mm. aulapalvelu, lounasravintola ja vuokralaisten käytössä on kuntosali. Ylimmässä kerroksessa on sauna- ja kokoustila.
Kysy lisää numerosta 044 723 4700 tai info@bref.fi. Palvelumme on tilanhakijoille ilmainen.
Hissi
Bureau Real Estate Finland Oy
Lars Sonckin kaari 16, 02600 Espoo
Näytä puhelinnumero
0447234700
Bureau Real Estate Finland Oy
https://www.bref.fi