Vuokrataan toimistotilat - Helsinki
Hitsaajankatu 22, Herttoniemi, 00810 Helsinki #10759495
Osoite
Hitsaajankatu 22, 00810 Helsinki
Tilatyyppi
Toimistotilaa
522 m2
Kiinteistö
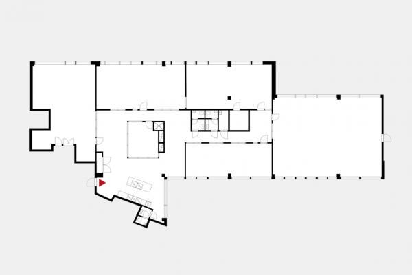
Vuokrattavissa viidennen kerroksen tilakokonaisuus, joka pitää sisällään huoneita, avoa, lounge/taukotilan, keittiön ja wc-tilat. Tila on jaettavissa usealle käyttäjälle
Opus sijaitsee Herttoniemen viihtyisän yritysalueen, kauppojen ja merellisen asuinalueen keskipisteessä erinomaisten liikenneyhteyksien varrella. Matka Helsingin keskustaan kestää metrolla vain muutaman minuutin.
Opus sijaitsee Herttoniemen viihtyisän yritysalueen, kauppojen ja merellisen asuinalueen keskipisteessä erinomaisten liikenneyhteyksien varrella. Matka Helsingin keskustaan kestää metrolla vain muutaman minuutin.
Pysäköinti
Tontilla hallissa
Palvelut
Vieressä mm. Kauppakeskus Hertsi, ja itse rakennuksessa Business Park palvelut yrityksille
Kulkuyhteydet
Erinomaiset, myös metroaseman tuntumassa
Vapautuu
Kysy
Kerros
5
Hissi
Ota yhteyttä
TopReal
Hietalahdenranta 17 B, 00180 Helsinki
Näytä puhelinnumero
09 6227 7852
Soita ja kysy lisää, tai tutustu www-sivuihimme!
http://www.topreal.fiPyydä lisätietoa
