Vuokrataan toimistotilat - Helsinki
Lintulahdenkatu 10, Sörnäinen, 00500 Helsinki #10759470
Upea arvokiinteistö toimitilakäyttöön Sörnäisten rannassa, merinäköalalla.
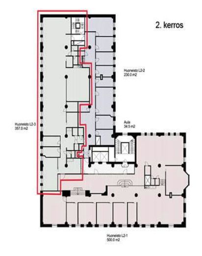
Kyseinen 357m2 toimisto sijaitsee kiinteistön 2. kerroksessa. Toimistossa on sekä huoneita että avotilaa.
Lintulahdenkatu 10 eli Lintunlahdenkulma on Väinö Vähäkallion suunnittelema, rakennushistoriallisesti arvokas toimistokiinteistö, joka on saneerattu nykyaikaisten vaatimusten mukaiseksi. Kiinteistön vuokralaisia palvelevat mm. aulapalvelu, ravintola ja saunaosasto Kiinteistö sijaitsee hyvien liikenneyhteyksien varrella, lähellä Kalasataman ja Sörnäisten metroasemia.
Kysy lisää numerosta 044 723 4700 tai info@bref.fi. Palvelumme on tilanhakijoille ilmainen.
Hissi
Bureau Real Estate Finland Oy
Lars Sonckin kaari 16, 02600 Espoo
Näytä puhelinnumero
0447234700
Bureau Real Estate Finland Oy
https://www.bref.fi