Vuokrataan toimistotilat - Helsinki
Kasarmikatu 25, Kaartinkaupunki, 00130 Helsinki #10759436
Täysin uudistettu 142 m² toimistotila arvokiinteistössä kaupungin halutuimmalla paikalla
Osoite
Kasarmikatu 25, 00130 Helsinki
Tilatyyppi
Toimistotilaa
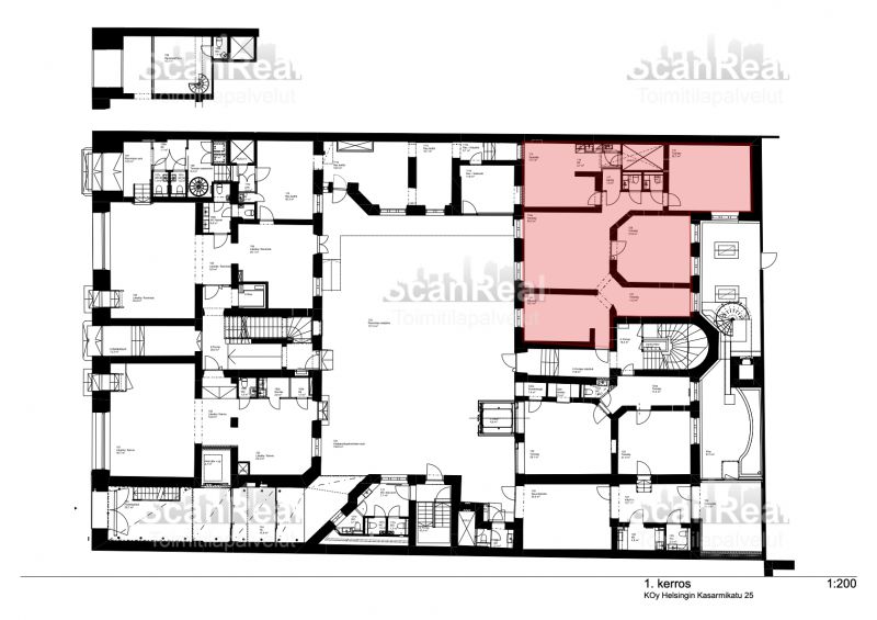
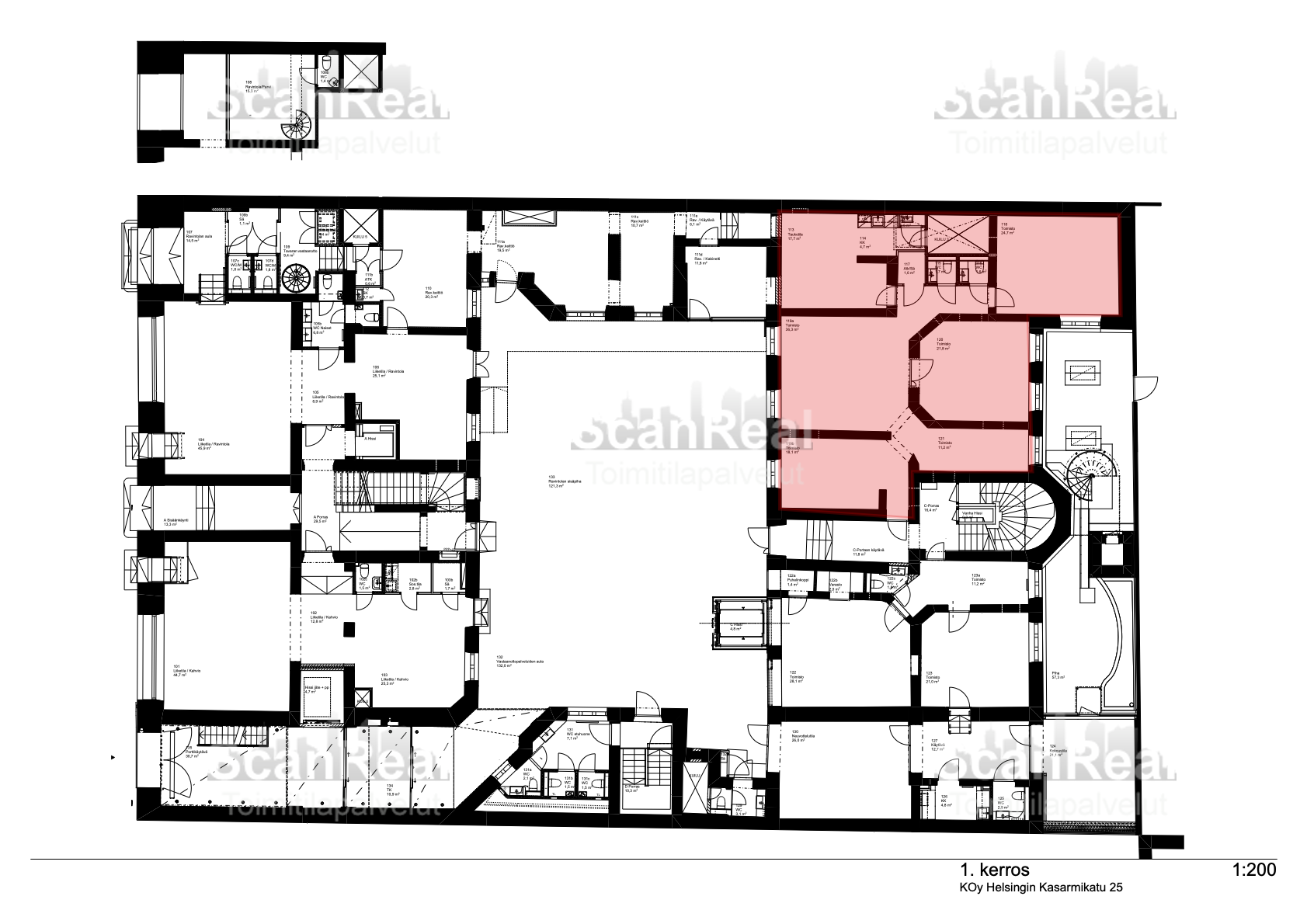
142 m2
Pohjapiirros
Kiinteistö
Toimistotilaa modernisoidussa arvokiinteistössä Helsingin Kaartinkaupungissa.
1800-luvun lopulla rakennetun historiallisen arvorakennuksen täysi peruskorjaus ja uudistus on valmistunut joulukuussa 2020.
Tämä 142 m² toimistotila sijaitsee 1.kerroksessa.
Pääkonttoritason kohde sijaitsee Suomen tärkeimmällä toimistoalueella vain kivenheiton päässä Esplanadilta. Alueella on myös korkeatasoisten hotellien ja ravintoloiden keskittymä.
Katetun sisäpihan lounge-henkinen aulatila on talon sydän, joka toivottaa asiakkaasi ja työntekijäsi tervetulleeksi. Kellaritiloissa vuokralaisia palvelee moderni kokouskeskus, josta neuvotteluhuoneita voi vuokrata tuntiperusteisesti.
Toimistotila on toteutettu laadukkain materiaalein ja talotekniikka on suunniteltu työntekijöiden viihtyvyyttä silmällä pitäen. Julkisivu ja porraskäytävät on säilytetty mahdollisimman alkuperäisinä ja ne viestivät talon pitkää historiaa.
Kiinteistö on Leed-ympäristösertifioitu.
Vuokranantajana on Barings Real Estate.
1800-luvun lopulla rakennetun historiallisen arvorakennuksen täysi peruskorjaus ja uudistus on valmistunut joulukuussa 2020.
Tämä 142 m² toimistotila sijaitsee 1.kerroksessa.
Pääkonttoritason kohde sijaitsee Suomen tärkeimmällä toimistoalueella vain kivenheiton päässä Esplanadilta. Alueella on myös korkeatasoisten hotellien ja ravintoloiden keskittymä.
Katetun sisäpihan lounge-henkinen aulatila on talon sydän, joka toivottaa asiakkaasi ja työntekijäsi tervetulleeksi. Kellaritiloissa vuokralaisia palvelee moderni kokouskeskus, josta neuvotteluhuoneita voi vuokrata tuntiperusteisesti.
Toimistotila on toteutettu laadukkain materiaalein ja talotekniikka on suunniteltu työntekijöiden viihtyvyyttä silmällä pitäen. Julkisivu ja porraskäytävät on säilytetty mahdollisimman alkuperäisinä ja ne viestivät talon pitkää historiaa.
Kiinteistö on Leed-ympäristösertifioitu.
Vuokranantajana on Barings Real Estate.
Vapautuu
Heti
Kerros
1
Energiatehokkuusluokka
Ei lain edellyttämää energiatodistusta
Katutasossa
Ota yhteyttä
ScanReal Oy LKV
Opus Business Park
Hitsaajankatu 24
00810 Helsinki
info@scanreal.fi
Puh:
Näytä puhelinnumero
020 730 8830
Sopivat toimitilat yhdellä otolla!
Kartoitamme toimitilatarpeesi ja etsimme yrityksellesi parhaiten sopivat vapaat toimitilat. Koska vuokranantajat maksavat palvelumme, on tämä yrityksellesi veloituksetonta.
OTA YHTEYTTÄ - SOVI NÄYTTÖ!
Kaikki kohteemme eivät ole netissä, kerro tilatarpeesi niin kartoitamme vaihtoehdot.
Palvelumme on tilanhakijalle ilmainen
Pyydä lisätietoa
