Vuokrataan toimistotilat - Helsinki
Pohjoinen Rautatiekatu 25, Kamppi, 00100 Helsinki #10759148
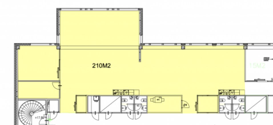
Vuokrataan 2. kerroksen 210m2 toimistotila.
Kiinteistössä aulapalvelut ja vartiointi. Saunatilat vuokrattavissa 7. kerroksesta.
Kadunvarsipysäköinti, rakennuksen omassa hallissa 15 autopaikkaa sekä Kampin pysäköintitalo. Lähialueen ja Kauppakeskus Kampin monipuoliset palvelut kavelyetäisyydellä.
Tilaratkaisut perustuvat osin huonetiloihin ja osin avotiloihin. Väliseiniä on tarvittaessa helppo siirtää ja muokata siten tilat tarpeiden mukaiseksi. Kaikissa kerroksissa on keittiövarustus.
Lisätietoja numerosta 020 7290 710. Lisää kohteita osoitteessa premises.fi.
Kohteella ei ole lain edellyttämää energiatodistusta tai energialuokka ei tiedossa.Kerros: 2
CRE PREMISES
Puh. Näytä puhelinnumero 020 7290 710
Vantaankoskentie 14
01670 VANTAA
