Vuokrataan toimistotilat - Helsinki
Hiomotie 32, Pitäjänmäki, 00380 Helsinki #10759024
Siistiä ja edustavaa toimistotilaa Helsingin Pitäjänmäellä.
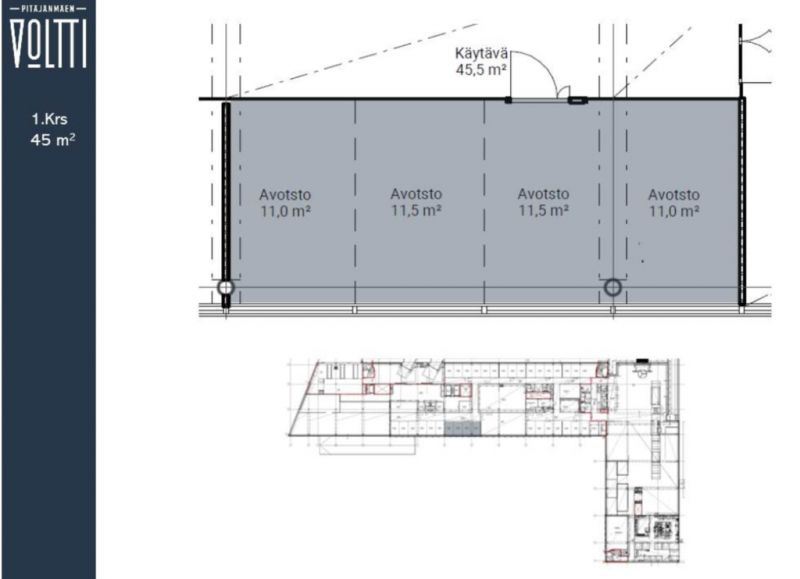
Tämä toimistotila on kooltaan 46 m² ja se sijaitsee kiinteistön 1. kerroksessa.
Kiinteistössä on korkea turvataso sekä monipuoliset palvelut. Tarjolla on mm. upeat edustustilat saunoineen, kuntosali, neuvotteluhuoneita ja auditorio. Yleiset tilat ovat vuokralaisten käytössä maksutta varausperiaatteella. Kiinteistössä on lisäksi pyöräparkki. Kuvat ovat yleiskuvia kiinteistön tiloista.
Kysy lisää numerosta 044 723 4700 tai info@bref.fi. Palvelumme on tilanhakijoille ilmainen.
Hissi
Bureau Real Estate Finland Oy
Lars Sonckin kaari 16, 02600 Espoo
Näytä puhelinnumero
0447234700
Bureau Real Estate Finland Oy
https://www.bref.fi