Myydään liiketilat - Jyväskylä
Yliopistonkatu 34 B 17, Keskusta, 40100 Jyväskylä #10758772
Mahdollisuus ostaa autohallipaikka 25.000 €/kpl.
Osoite
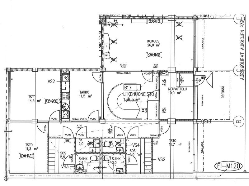
Yliopistonkatu 34 B 17, 40100 Jyväskylä
Tilatyyppi
Liiketilaa
136,5 m2
Myyntihinta
230000.00 EUR
Kiinteistö
E-luku 236
Muuta
Mahdollisuus ostaa autohallipaikka 25.000 €/kpl.
Lisätietoa saneerauksista
Taloyhtiön A-osa on valmistunut alun perin 1938 ja B-osa 1973 ja C- ja D-osat
2007, A- ja B-osat on täysin peruskorjattu 2005 ja samassa yhteydessä on myös
autohalliosat K1, K2 ja K3 peruskorjattu
- AB-talon koko keltaisen värisen julkisivupinnan takuukorjaustyö 2011
- Syksyllä 2013 tehtiin myös kokonaan uusiksi takuukorjaustyönä sisäpihan
C- ja D-rappujen luiskalaatoitus lämmitysjärjestelmineen
- ilmastointikanavat on nuohottu ja ilmanvaihtojärjestelmä säädetty 2015-2016
- sprinklerijärjestelmän keskuksen uusiminen kokonaisuudessaan 2019
- sisäpihan sadevesiviemäriverkostoon kaksi huoltoluukkua, putkien
lisäkannakointia sekä verkoston puhdistus vuosikymmenten ”aineksesta” 2020
- A-talon peltikatteen ruosteenpoisto ja huoltomaalaus 2021
- muuten yhtiön rakennuksissa ja kiinteistöissä on tehty taloyhtiön normaaleja
tämän ikäluokan uudiskohteen mukaisia huolto- ja kunnostustöitä
Hallituksen selvitys kunnossapitotarpeista vuosille 2022-2027:
- autohallikerrosten/muiden vanhojen viemärijärjestelmäosien puhdistus ja kuvaus
- koko kiinteistön lämmitysverkoston mittaus, tasapainotus ja säätö
- B-talon peltikatteen paikka-/huoltomaalaus lähivuosina sekä samalla mahdollisesti
myös jo CD-talonkin katolle jotain toimia tarvittaessa
- lukitusjärjestelmän (nykyisessä patentti vanhentunut) uusiminen nykyaikaiseksi
- julkisivujen elastisten saumausten uusiminen jakson loppupuolella
- AB-talon tarvittavien julkisivuosien huoltomaalaus jakson loppupuolella
- CD-talon tarvittavien julkisivuosien huoltomaalaus AB-talon kanssa samassa
yhteydessä, jos päädytään tekemään AB-talo aikaisintaan 2023
- sähkökeskusten huoltokunnostus ja elohopeavalaisimien ja yleisten tilojen
valaisimien uusiminen nykyaikaisiksi LED-valaisimiksi jakson loppupuolella
2007, A- ja B-osat on täysin peruskorjattu 2005 ja samassa yhteydessä on myös
autohalliosat K1, K2 ja K3 peruskorjattu
- AB-talon koko keltaisen värisen julkisivupinnan takuukorjaustyö 2011
- Syksyllä 2013 tehtiin myös kokonaan uusiksi takuukorjaustyönä sisäpihan
C- ja D-rappujen luiskalaatoitus lämmitysjärjestelmineen
- ilmastointikanavat on nuohottu ja ilmanvaihtojärjestelmä säädetty 2015-2016
- sprinklerijärjestelmän keskuksen uusiminen kokonaisuudessaan 2019
- sisäpihan sadevesiviemäriverkostoon kaksi huoltoluukkua, putkien
lisäkannakointia sekä verkoston puhdistus vuosikymmenten ”aineksesta” 2020
- A-talon peltikatteen ruosteenpoisto ja huoltomaalaus 2021
- muuten yhtiön rakennuksissa ja kiinteistöissä on tehty taloyhtiön normaaleja
tämän ikäluokan uudiskohteen mukaisia huolto- ja kunnostustöitä
Hallituksen selvitys kunnossapitotarpeista vuosille 2022-2027:
- autohallikerrosten/muiden vanhojen viemärijärjestelmäosien puhdistus ja kuvaus
- koko kiinteistön lämmitysverkoston mittaus, tasapainotus ja säätö
- B-talon peltikatteen paikka-/huoltomaalaus lähivuosina sekä samalla mahdollisesti
myös jo CD-talonkin katolle jotain toimia tarvittaessa
- lukitusjärjestelmän (nykyisessä patentti vanhentunut) uusiminen nykyaikaiseksi
- julkisivujen elastisten saumausten uusiminen jakson loppupuolella
- AB-talon tarvittavien julkisivuosien huoltomaalaus jakson loppupuolella
- CD-talon tarvittavien julkisivuosien huoltomaalaus AB-talon kanssa samassa
yhteydessä, jos päädytään tekemään AB-talo aikaisintaan 2023
- sähkökeskusten huoltokunnostus ja elohopeavalaisimien ja yleisten tilojen
valaisimien uusiminen nykyaikaisiksi LED-valaisimiksi jakson loppupuolella
Vapautuu
Myydään vuokrattuna
Huoneiden lukumäärä
5
Ota yhteyttä
Pyydä lisätietoa
