Vuokrataan toimistotilat - Helsinki
Kaisaniemenkatu 6, Kaisaniemi, 00100 Helsinki #10758693
Vuokrataan huone ja avotilasta ja muodostuva 7. kerroksen toimistotila Vuorikadun puolella Kaisaniemen metroaseman vieressä. Ota yhteyttä ja sovi esittely, vuokrauspalvelumme on tilanhakijoille maksuton.
Osoite
Kaisaniemenkatu 6, 00100 Helsinki
Tilatyyppi
Toimistotilaa
141 m2
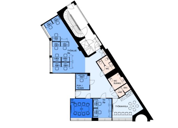
Pohjapiirros
Sijainti
Kaisaniemen metroaseman vieressä.
Pysäköinti
Keskustan parkkihallit.
Palvelut
Kaikki keskustan palvelut.
Kulkuyhteydet
Kaikki julkiset yhteydet käden ulottuvilla.
Vapautuu
Heti
Kerros
7 / 8
Energiatehokkuusluokka
Ei lain edellyttämää energiatodistusta
Hissi
Ota yhteyttä
Senaatin Notariaatti Oy LKV
Lämmittäjänkatu 4 A
FIN-00880 Helsinki
Tel:
Näytä puhelinnumero
+358 9 7745 100
Pyydä lisätietoa
