Vuokrataan toimistotilat - Oulu
Yrttipellontie 10, Peltola, 90230 Oulu #10758401
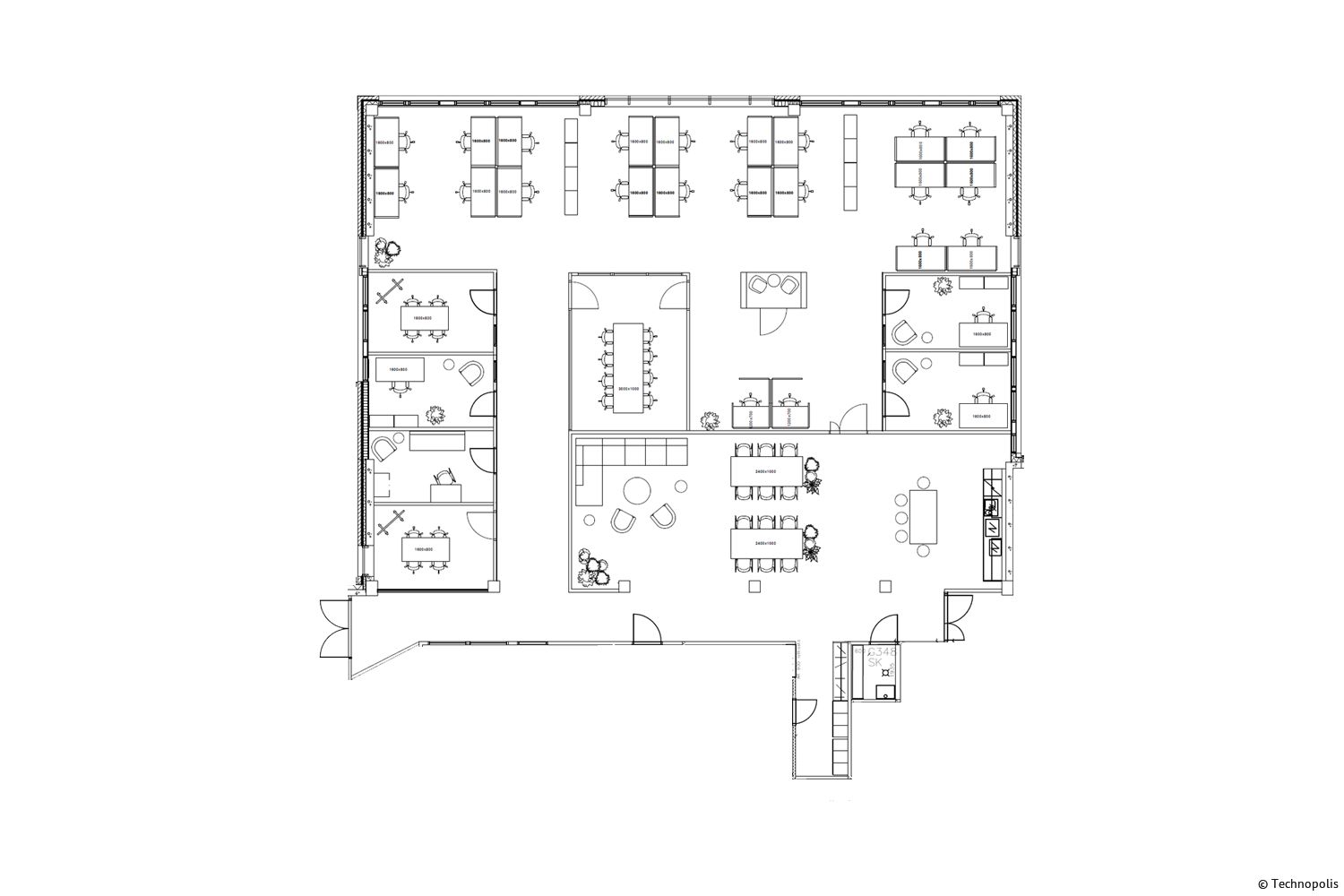
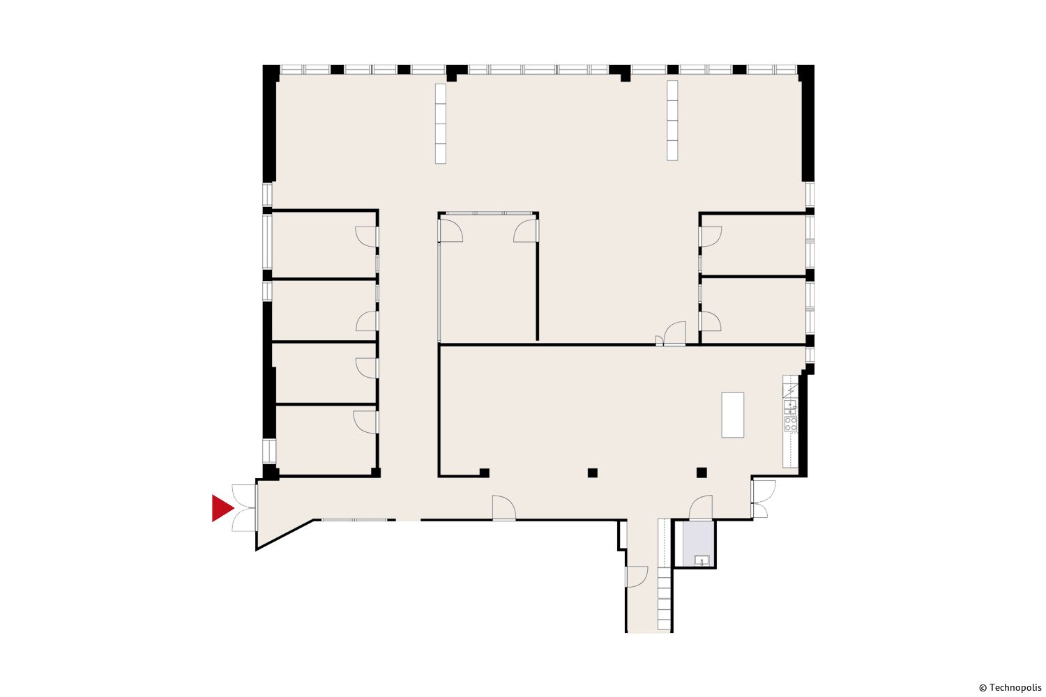
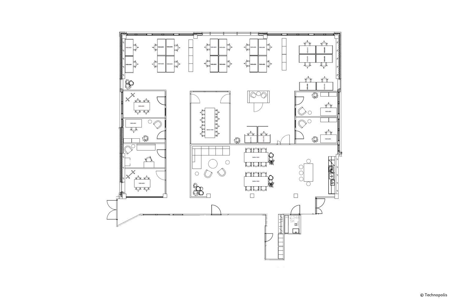
Tämä 3. kerroksen moderni ja avara toimistotila tarjoaa erinomaiset puitteet tehokkaaseen ja viihtyisään työskentelyyn! Pohjaratkaisussa yhdistyvät avotilan joustavuus ja erillisten huoneiden tarjoama rauha, joten tila sopii niin yhteistyöhön kuin keskittymistä vaativaan työhön. Tilassa on useita neuvottelu- ja tiimityötiloja, avara työskentelyalue sekä viihtyisä lounge- ja taukotila. Hyvin varusteltu keittiö tuo lisää mukavuutta työpäivään, ja työpisteet on suunniteltu tukemaan modernia ja tehokasta työntekoa. Ilmoitettu neliömäärä sisältää jyvityksen kiinteistön yhteisistä tiloista.
Technopolis Peltola tarjoaa vuokralaisilleen monipuoliset palvelut, kuten aulapalvelun ja yhteiset tilat, jotka helpottavat arkea ja lisäävät työviihtyvyyttä. Tämä tila sopii erinomaisesti yritykselle, joka arvostaa modernia, toimivaa ja edustavaa työympäristöä.
Varaa esittely ja tule tutustumaan – tämä toimisto voi olla juuri oikea ratkaisu yrityksellesi!
Technopolis
Elektroniikkatie 8 FIN-90590 Oulu
Näytä puhelinnumero
046 712 0000
Terhi Kestilä
Näytä puhelinnumero
040 719 9561
Myynti Technopolis Oulu
Technopolis on työympäristöjen asiantuntija. Tarjoamme joustavia ja tehokkaita toimitiloja sekä niihin liittyviä palveluita. Hoidamme kaiken työtilojen suunnittelusta sekä aula- ja kokouspalveluista ravintoloihin ja siivoukseen. Asiakaskokemus ja sen kehittäminen ovat toimintamme ytimessä. Meillä on 14 kampusta, joissa toimii 1200 asiakasyritystä ja niiden 35 000 työntekijää neljässä maassa Euroopassa.
https://technopolisglobal.com/fi