Vuokrataan toimistotilat, varastotilat, työtilat - Helsinki
Pursimiehenkatu 25, Punavuori, 00150 Helsinki #10758365
Katutason 234 m² työ-/varastotila Punavuoressa.
Osoite
Pursimiehenkatu 25, 00150 Helsinki
Tilatyyppi
Toimistotilaa
234 m2
Varastotilaa
234 m2
Työtilaa
234 m2
Yhteensä
234 m2
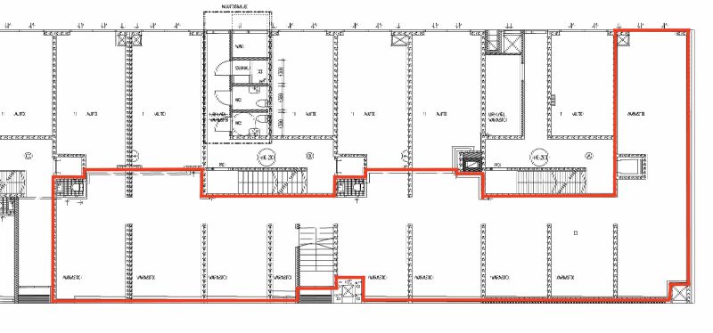
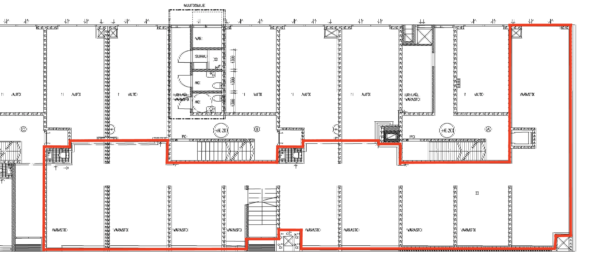
Pohjapiirros
Virtuaaliesittely
Kiinteistö
234 m² tila sijaitsee kiinteistön katutasossa. Tila soveltuu toimistoksi, työtilaksi, varastoksi tai kevyeen tuotantoon.
Pursimiehenkatu 25 on asuinkiinteistö, joka sijaitsee Helsingin Punavuoressa, Hietalahdenrannan läheisyydessä. Alueella on runsaasti lounasravintoloita, päivittäistavarapalvelut ja erikoisliikkeitä. Helsingin keskustan palvelut sijaitsevat lyhyen matkan päässä.
Pursimiehenkatu 25 on asuinkiinteistö, joka sijaitsee Helsingin Punavuoressa, Hietalahdenrannan läheisyydessä. Alueella on runsaasti lounasravintoloita, päivittäistavarapalvelut ja erikoisliikkeitä. Helsingin keskustan palvelut sijaitsevat lyhyen matkan päässä.
Kulkuyhteydet
Hyvät liikenneyhteydet busseilla ja raitiovaunuilla.
Vapautuu
Heti
Kerros
1
Energiatehokkuusluokka
Ei lain edellyttämää energiatodistusta
Katutasossa
Ota yhteyttä
ScanReal Oy LKV
Opus Business Park
Hitsaajankatu 24
00810 Helsinki
info@scanreal.fi
Puh:
Näytä puhelinnumero
020 730 8830
Sopivat toimitilat yhdellä otolla!
Kartoitamme toimitilatarpeesi ja etsimme yrityksellesi parhaiten sopivat vapaat toimitilat. Koska vuokranantajat maksavat palvelumme, on tämä yrityksellesi veloituksetonta.
OTA YHTEYTTÄ - SOVI NÄYTTÖ!
Kaikki kohteemme eivät ole netissä, kerro tilatarpeesi niin kartoitamme vaihtoehdot.
Palvelumme on tilanhakijalle ilmainen
Pyydä lisätietoa
