Vuokrataan toimistotilat - Helsinki
Työpajankatu 10, Kalasatama, 00580 Helsinki #10758337
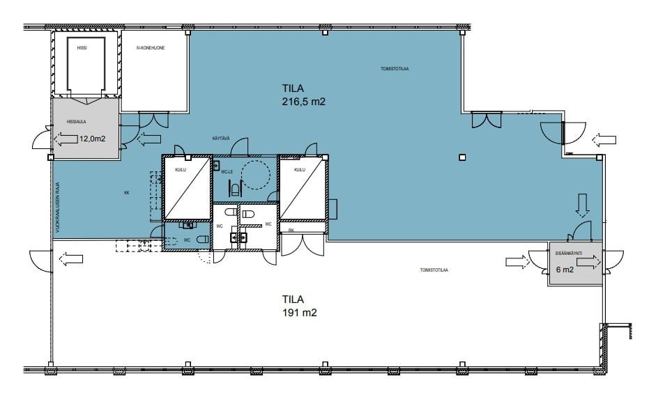
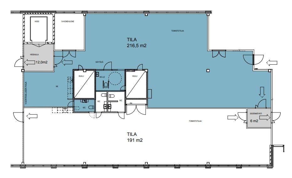
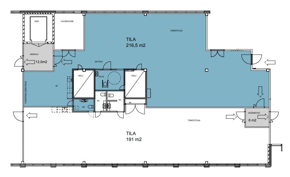
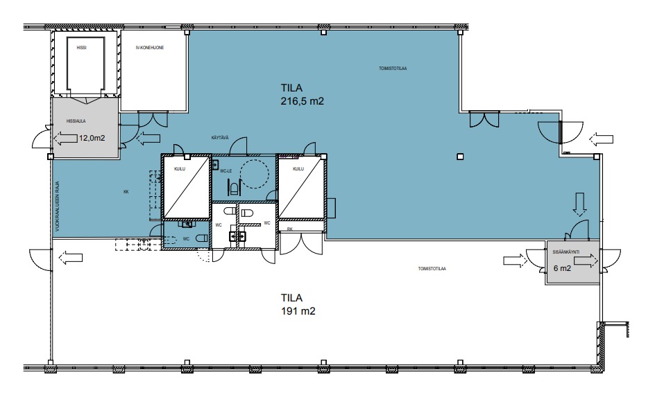
Tämä toimistotila tarjoaa mahdollisuuden tehokkaaseen työskentelyyn erinomaisella sijainilla. Tällä hetkellä avoimeen tilaan voidaan toteuttaa tilaratkaisuja monipuolisesti, ja vuokralainen pääsee vaikuttamaan myös tulevaan lattiamateriaaliin (nyt betonilla). Avokonttoria täydentämään saadaan erillisiä huoneita, joissa onnistuu rauhallisempi työskentely tai tiimin keskeinen toiminta.
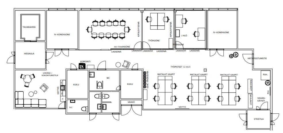
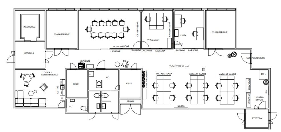
Nykypäivän toimistotarpeet huomioiden tähän tilaan ollaan rakentamassa keittiö sujuvoittamaan päivän kulkua. Ilmoituksen kalustettu pohjakuva on esimerkki yhdestä mahdollisesta ratkaisusta!
Pienien jyvityksien kera vuokra-ala on n. 224 m2.
Helsingin Yrittäjätalo tarjoaa toimistotiloja hyvien kulkuyhteyksien varrelta, Kalasataman metroasemaa vastapäätä. Näihin remontoituihin tiloihin on tuotu modernia talotekniikkaa, ilmanvaihto ja -jäähdytys sekä valaistusratkaisut. Toimitilat rakentuvat laadukkailla ratkaisuilla teidän tilatarpeenne huomioiden. Tilojen uniikit yksityiskohdat kuten kaksikerroksinen näyttävä aulatila toivottavat niin työntekijät kuin asiakkaat tervetulleiksi.
Croisette on uusi ja innovatiivinen toimitilojen välitysyritys Suomessa. Meillä on vahva halu auttaa teitä löytämään paras toimitilaratkaisu mahdollisimman vaivattomasti.
Huomaathan, että kaikki vapaat ja vapautuvat tilat ovat kauttamme saatavilla. Osa tiloista on hiljaisessa markkinoinnissa, mutta ottamalla meihin yhteyttä saat nekin tietoosi.
Palvelumme on tilanhakijoille täysin maksutonta.
Hissi
Croisette Real Estate Partner
Erottajankatu 5 A 6, 00130 Helsinki
Näytä puhelinnumero
+358 400 585 857
Croisette Vuokraus
Näytä puhelinnumero
+358400585857
