Vuokrataan toimistotilat - Helsinki
Vattuniemenranta 2, Lauttasaari, 00210 Helsinki #10758037
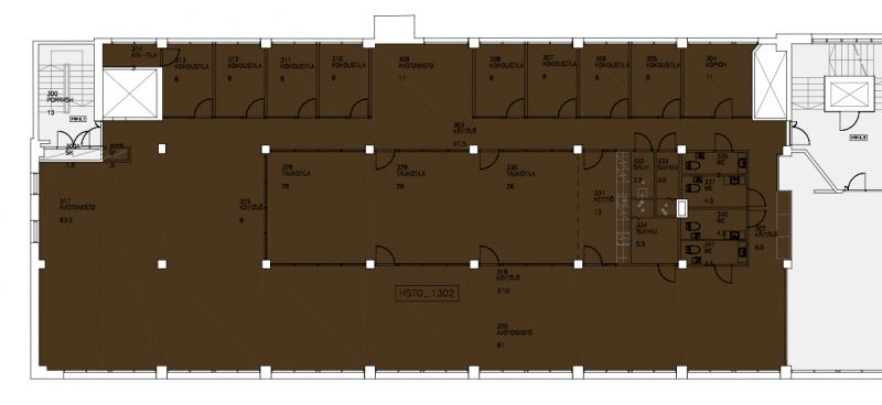
Vuokrataanavotoimisto Lauttasaaresta merenrannasta. Upeat näkymät merelle ja venesatamaan. Tämä tila koostuu avotilasta sekä useasta kokoushuoneesta. Tilassa on myös taukotila, keittiö, suihkut ja wc-tilat. Lisätietoja soita 020 730 4530 tai info@repoint.fi. Palvelumme on tilanhakijalle ilmainen.
Osoite
Vattuniemenranta 2, 00210 Helsinki
Tilatyyppi
Toimistotilaa
513 m2
Vapautuu
Kysy
Kerros
3
Ota yhteyttä
Repoint Toimitilat Oy
Itälahdenkatu 22 B, 00210 Helsinki
Näytä puhelinnumero
020 730 4530
Lisätietoja soita Näytä puhelinnumero 020 730 4530 tai info@repoint.fi
https://repoint.fi/Pyydä lisätietoa
