Vuokrataan toimistotilat - Helsinki
Kasarminkatu 44, Keskusta, 00130 Helsinki #10757992
Osoite
Kasarminkatu 44, 00130 Helsinki
Tilatyyppi
Toimistotilaa
551,5 m2
Kiinteistö
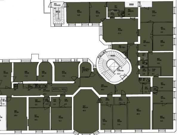
Neljännen kerroksen huonetoimisto, joka voidaan remontoida kombitoimistoksi asiakkaan tarpeita paremmin vastaamaan. Tilassa on suihku- ja wc-tilat. Käynti tilaan on Rikhardinkadun puolelta.
Pysäköinti
Alueen parkkihallit, ja kadunvarsi
Palvelut
Kaikki keskustan palvelut läheisyydessä
Kulkuyhteydet
Erinomaiset
Vapautuu
17.04.2023
Kerros
4
Hissi
Ota yhteyttä
TopReal
Hietalahdenranta 17 B, 00180 Helsinki
Näytä puhelinnumero
09 6227 7852
Soita ja kysy lisää, tai tutustu www-sivuihimme!
http://www.topreal.fiPyydä lisätietoa
