Vuokrataan toimistotilat - Helsinki
Kaisaniemenkatu 6, Keskusta, 00100 Helsinki #10757989
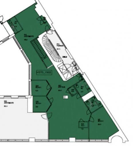
Toimistotila 5.krs
Osoite
Kaisaniemenkatu 6, 00100 Helsinki
Tilatyyppi
Toimistotilaa
188 m2
Kiinteistö
5.krs. toimisto, pääosin avotilaa, muutama toimistohuone, neuvotteluhuone, ja wc-tilat.
Pysäköinti
Kadunvarsi ja alueen parkkihallit, Kluuvin Parkki lähimpänä
Palvelut
Kaikkien keskustan palvelujen äärellä
Kulkuyhteydet
Metro, raitiovaunu ja bussit, erinomaisten julkisten liikenneyhteyksien äärellä,
Helsingin päärautatieasemalle 450m matka, metro 100m
Helsingin päärautatieasemalle 450m matka, metro 100m
Vapautuu
Kysy
Kerros
5
Hissi
Ota yhteyttä
TopReal
Hietalahdenranta 17 B, 00180 Helsinki
Näytä puhelinnumero
09 6227 7852
Soita ja kysy lisää, tai tutustu www-sivuihimme!
http://www.topreal.fiPyydä lisätietoa
