Vuokrataan tuotantotilat, varastotilat - Orimattila
Kaitilantie 30, 16300 Orimattila #10757884
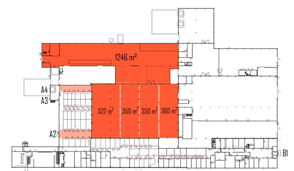
Vuokrataan tuotanto- tai varastotila 2828 m2. Tilan korkeus on 7 metriä. Lastauslaituri ja sisäänajomahdollisuus.
Kaitilan vaatetehtaana tunnettu kiinteistö on rakennettu useassa vaiheessa 1960- ja 1970-luvuilla. Teollisuuskiinteistön kokonaispinta-ala on 10 000 m2 ja siinä on sprinklerijärjestelmä. Piha-alue on asfaltoitu.
Lisätiedot 020 7290 710. Lisää kohteita www.premises.fi
Kohteella ei ole lain edellyttämää energiatodistusta tai energialuokka ei tiedossa.Kerros: katutaso
Osoite
Kaitilantie 30, 16300 Orimattila
Tilatyyppi
Tuotantotilaa
2828 m2
Varastotilaa
2828 m2
Yhteensä
2828 m2
Ota yhteyttä
CRE PREMISES
Puh. Näytä puhelinnumero 020 7290 710
Vantaankoskentie 14
01670 VANTAA
Pyydä lisätietoa
