Vuokrataan toimistotilat, näyttelytilat - Helsinki
Itälahdenkatu 23, Lauttasaari, 00210 Helsinki #10757877
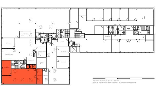
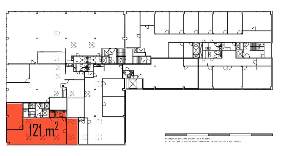
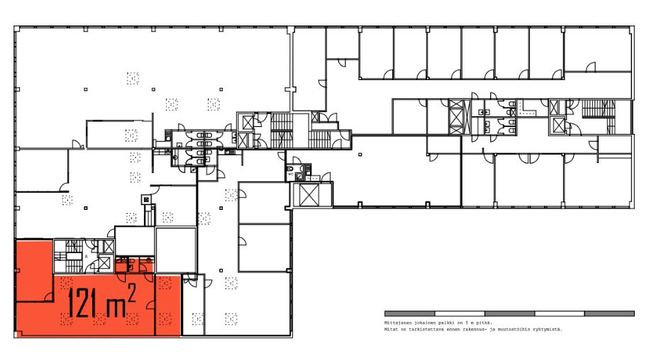
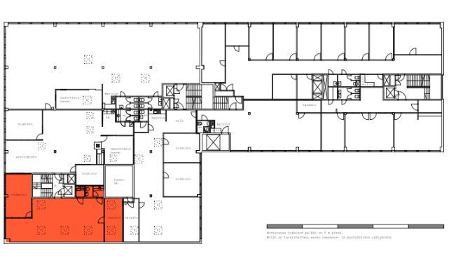
Vuokrattava toimistotila 121 m2 muodostuu yhdestä suuresta tilasta sekä kahdesta erillisestä huoneesta, joita voi käyttää esim. toimistona ja varastona. Kattoikkunoista tila saa lisävaloa, toimisto kun sijaitsee ylimmässä kerroksessa. Toimitila sopii myös showroomiksi. Tiloissa on wc ja keittiö. Käytössä henkilöhissi.
Helsingin Lauttasaaressa sijaitseva toimistorakennus on valmistunut 1970-luvulla. Sen kokonaispinta-ala on 7000 m2. Kohteessa on omia parkkipaikkoja ja lastauslaituri. Toimitilojen lähistöllä on useita lounasravintoloita.
Rakennuksessa on viisi kerrosta ja kellarikerros. Henkilöhissit kulkevat kaikkiin kerroksiin, tavarahissit kellarista 4. kerrokseen asti.
Yhteydenotot 020 7290 710. Lisää kohteita www.premises.fi.
Kohteella ei ole lain edellyttämää energiatodistusta tai energialuokka ei tiedossa.Kerros: 5
CRE PREMISES
Puh. Näytä puhelinnumero 020 7290 710
Vantaankoskentie 14
01670 VANTAA
