Vuokrataan toimistotilat - Helsinki
Itälahdenkatu 23, Lauttasaari, 00210 Helsinki #10757858
Lauttasaaressa sijaitseva toimistorakennus. Kohteessa on omia parkkipaikkoja ja lastauslaituri.
Osoite
Itälahdenkatu 23, 00210 Helsinki
Tilatyyppi
Toimistotilaa
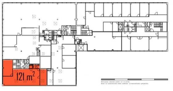
121 m2
Kiinteistö
Lauttasaaren Vattuniemessä sijatsevassa toimistorakennuksessa hyvällä pohjaratkaisulla oleva tila. Tila koostuu isosta avotilasta, ja kahdesta erillisestä huoneesta, tilassa oma keittiö ja wc. Tila sijaitsee rakennuksen Itälahdenkadun puoleisessa osassa.
Pysäköinti
Kiinteistöllä omia parkkipaikkoja pihalla
Palvelut
Useita lounasravintoloita vieressä, pankki-ym.palvelut lähellä.
Vapautuu
14.04.2023
Kerros
5
Hissi
Ota yhteyttä
TopReal
Hietalahdenranta 17 B, 00180 Helsinki
Näytä puhelinnumero
09 6227 7852
Soita ja kysy lisää, tai tutustu www-sivuihimme!
http://www.topreal.fiPyydä lisätietoa
