Vuokrataan toimistotilat - Tampere
Haarlankatu 4, Onkiniemi, 33230 Tampere #10757560
Haarlan tehdaskiinteistöön valmistunut tyylikkäitä toimistotiloja
Osoite
Haarlankatu 4, 33230 Tampere
Tilatyyppi
Toimistotilaa
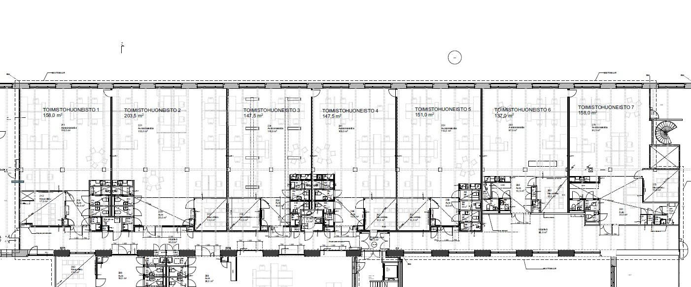
137 - 158 m2
Kiinteistö
Haarlan paperitehdaskiinteistöön valmistunut uutta toimistotilaa
Haarlan Paperitehdas Oy toimi vuosina 1920–1989. Tehtaan perusti kauppaneuvos Rafael Haarla. Tehdas on Bertel Strömmerin suunnittelema ja se rakennettiin 1919-1920. Rakennus on nykyään suojeltu.
Kiinteistö sijaitsee aivan Näsijärven ja Särkänniemen välittömässä läheisyydessä. Tampereen keskustaan ja mm. Lielahteen on lyhyt matka. Tampereen raitiotie valmistuu tänä vuonna alueelle. Myös paikallisbussit kulkevat vierestä. Pihassa on vierailijoille runsaasti ilmaista pysäköintitilaa ja tolppapaikkoja vuokrattavana. Santalahden uusi asuinalue valmistuu tien toiselle puolelle parasta aikaa. Myös Santalahden uusi tapahtumapuisto pääsee aloittamaan toimintaansa.
Vanhassa tehdaskiinteistössä on hyvin monipuolisia toimijoita. Piharakennuksessa toimii lounas-kahvio. Rakennuksessa on hissi ja myös tavarahissi suurempia toimituksia varten. Kellarikerroksessa on eri kokoisia edullisia lukittavia varastotiloja saatavilla.
Haarlan vanhaan tehdaskiinteistöön on juuri valmistunut tyylikästä ja persoonallisen tunnelmallista toimistotilaa
Nämä 2. kerroksen tilat ovat avotoimistoja ja jokaisessa tilassa on erillinen neuvotteluhuone, 2xwc, suihku, siivouskomero ja keittiö. Näiden tilojen ikkunat ovat Pispalanharjun suuntaan. Ikkunoissa on sähkökäyttöiset kaihdinverhot ja tiloissa on jäähdytys. Jokaiseen toimistoon on oma ovipuhelin. Lattioissa on kahta eri värisävyä oleva tyylikäs huopamatto. Tiloihin voidaan rakentaa vuokralaisen toiveesta mm. lisää työhuoneita, hiljaisia tiloja yms. Tilat ovat myös yhdistettävissä toisiinsa käyntiaukolla tai -ovella. Käytävälle on tulossa muutama yhteiskäyttöinen puhelinkoppi. Ilmoituksessa kuvia, joista näkyy toimisto, jonne rakennettu lisäksi yksi erillinen työhuone.
Uudet toimistot ovat modernit, mutta vanhaa kiinteistöä kunnioittavat. Mm. vanhat punatiiliseinät jäävät näkyviin.
Tällä hetkellä vapaana olevat tilat: 147,5 m² ja 151 m²
Logistila on valtakunnallisesti paikallinen toimitilavälittäjä, joka tuntee alueesi tilatarjonnan. Ota yhteyttä, niin löydämme sinulle sopivan ratkaisun. Palvelumme on tilanhakijalle aina maksuton.
Haarlan Paperitehdas Oy toimi vuosina 1920–1989. Tehtaan perusti kauppaneuvos Rafael Haarla. Tehdas on Bertel Strömmerin suunnittelema ja se rakennettiin 1919-1920. Rakennus on nykyään suojeltu.
Kiinteistö sijaitsee aivan Näsijärven ja Särkänniemen välittömässä läheisyydessä. Tampereen keskustaan ja mm. Lielahteen on lyhyt matka. Tampereen raitiotie valmistuu tänä vuonna alueelle. Myös paikallisbussit kulkevat vierestä. Pihassa on vierailijoille runsaasti ilmaista pysäköintitilaa ja tolppapaikkoja vuokrattavana. Santalahden uusi asuinalue valmistuu tien toiselle puolelle parasta aikaa. Myös Santalahden uusi tapahtumapuisto pääsee aloittamaan toimintaansa.
Vanhassa tehdaskiinteistössä on hyvin monipuolisia toimijoita. Piharakennuksessa toimii lounas-kahvio. Rakennuksessa on hissi ja myös tavarahissi suurempia toimituksia varten. Kellarikerroksessa on eri kokoisia edullisia lukittavia varastotiloja saatavilla.
Haarlan vanhaan tehdaskiinteistöön on juuri valmistunut tyylikästä ja persoonallisen tunnelmallista toimistotilaa
Nämä 2. kerroksen tilat ovat avotoimistoja ja jokaisessa tilassa on erillinen neuvotteluhuone, 2xwc, suihku, siivouskomero ja keittiö. Näiden tilojen ikkunat ovat Pispalanharjun suuntaan. Ikkunoissa on sähkökäyttöiset kaihdinverhot ja tiloissa on jäähdytys. Jokaiseen toimistoon on oma ovipuhelin. Lattioissa on kahta eri värisävyä oleva tyylikäs huopamatto. Tiloihin voidaan rakentaa vuokralaisen toiveesta mm. lisää työhuoneita, hiljaisia tiloja yms. Tilat ovat myös yhdistettävissä toisiinsa käyntiaukolla tai -ovella. Käytävälle on tulossa muutama yhteiskäyttöinen puhelinkoppi. Ilmoituksessa kuvia, joista näkyy toimisto, jonne rakennettu lisäksi yksi erillinen työhuone.
Uudet toimistot ovat modernit, mutta vanhaa kiinteistöä kunnioittavat. Mm. vanhat punatiiliseinät jäävät näkyviin.
Tällä hetkellä vapaana olevat tilat: 147,5 m² ja 151 m²
Logistila on valtakunnallisesti paikallinen toimitilavälittäjä, joka tuntee alueesi tilatarjonnan. Ota yhteyttä, niin löydämme sinulle sopivan ratkaisun. Palvelumme on tilanhakijalle aina maksuton.
Vapautuu
Kysy
Ota yhteyttä
Logistila Oy
Kauppakatu 14, 33210 TAMPERE
Jukka Nukari
Näytä puhelinnumero
0440759789
Ulla Lyytinen
Näytä puhelinnumero
040 776 0538
Pyydä lisätietoa
