Vuokrataan toimistotilat - Järvenpää
Aalloppi, Myllytie 1a, 04410 Järvenpää #10757459
Erittäin siisti 162 m² toimisto Järvenpään keskustassa
Osoite
Myllytie 1a, 04410 Järvenpää
Tilatyyppi
Toimistotilaa
162 m2
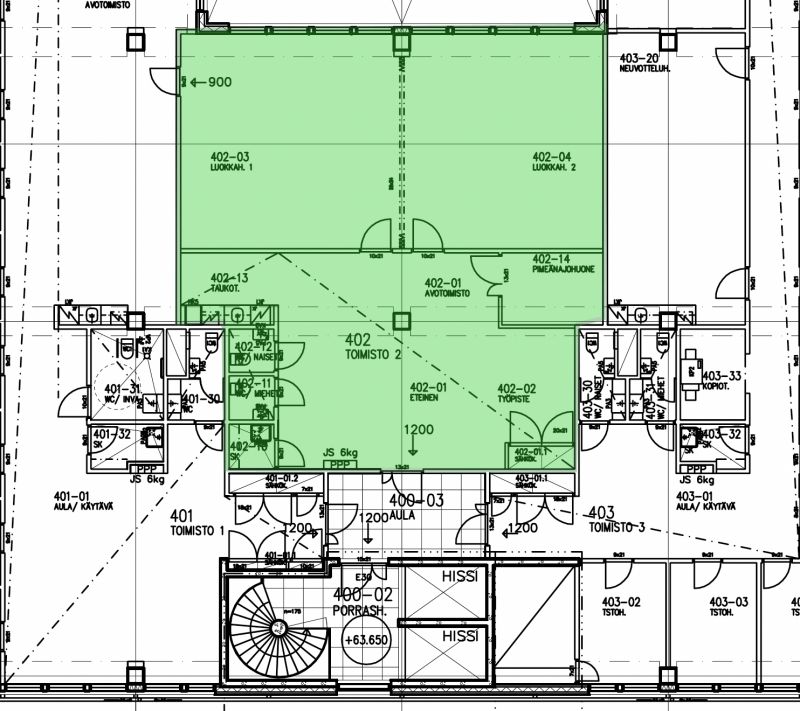
Pohjapiirros
Kiinteistö
Liikekeskus Aallopissa 162 m² neljännen kerroksen siisti toimisto.
Tila koostuu avotoimistosta, kahdesta isosta huoneesta, keittiötilasta ja tilassa on kaksi wc:tä.
Kiinteistössä on mm. ravintola, lääkäriasema ja päivittäistavarakauppa.
Järvenpään keskustan kaikki palvelut lähellä.
Pysäköintipaikkoja pihalla ja parkkihallissa.
Tila koostuu avotoimistosta, kahdesta isosta huoneesta, keittiötilasta ja tilassa on kaksi wc:tä.
Kiinteistössä on mm. ravintola, lääkäriasema ja päivittäistavarakauppa.
Järvenpään keskustan kaikki palvelut lähellä.
Pysäköintipaikkoja pihalla ja parkkihallissa.
Vapautuu
Heti
Kerros
4
Energiatehokkuusluokka
D
Hissi
Ota yhteyttä
ScanReal Oy LKV
Opus Business Park
Hitsaajankatu 24
00810 Helsinki
info@scanreal.fi
Puh:
Näytä puhelinnumero
020 730 8830
Sopivat toimitilat yhdellä otolla!
Kartoitamme toimitilatarpeesi ja etsimme yrityksellesi parhaiten sopivat vapaat toimitilat. Koska vuokranantajat maksavat palvelumme, on tämä yrityksellesi veloituksetonta.
OTA YHTEYTTÄ - SOVI NÄYTTÖ!
Kaikki kohteemme eivät ole netissä, kerro tilatarpeesi niin kartoitamme vaihtoehdot.
Palvelumme on tilanhakijalle ilmainen
Pyydä lisätietoa
