Vuokrataan toimistotilat - Espoo
Tarvonsalmenkatu 17, Perkkaa, 02600 Espoo #10757452
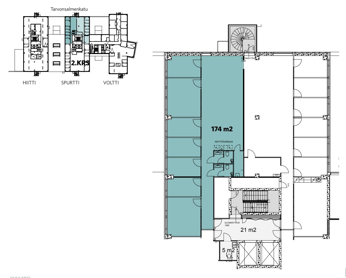
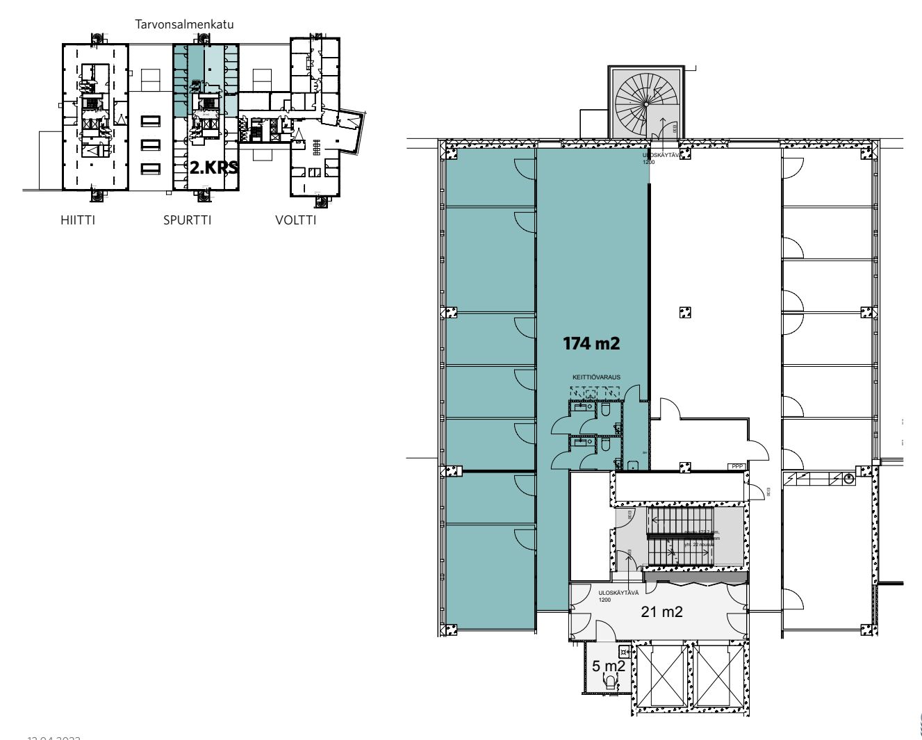
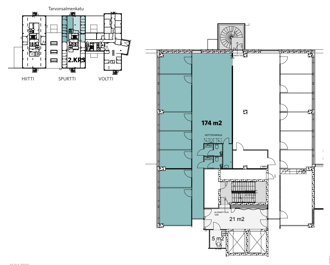
Vuokrataan 2. kerroksen moderni toimistotila. Tilassa on useita huoneita ja avotilaa sekä kaksi sisäänkäyntiä. Paikalle pääsee helposti niin omalla autolla kuin julkisilla kulkuvälineilläkin hyvien yhteyksien ansiosta.
Kiinteistö sijaitsee hyvien kulkuyhteyksien varrella, aivan Turunväylän läheisyydessä.
Lisätietoja 020 7290 710. Lisää kohteita www.premises.fi
Kohteella ei ole lain edellyttämää energiatodistusta.Kerros: 2
Osoite
Tarvonsalmenkatu 17, 02600 Espoo
Tilatyyppi
Toimistotilaa
174 m2
Kulkuyhteydet
Erinomaiset liikenneyhteydet joka suuntaan sekä autolla, että julkisilla kulkuvälineillä.
Ota yhteyttä
CRE PREMISES
Puh. Näytä puhelinnumero 020 7290 710
Vantaankoskentie 14
01670 VANTAA
Pyydä lisätietoa
