Vuokrataan toimistotilat - Helsinki
VERK, Sörnäistenkatu 1, Kalasatama, 00580 Helsinki #10756908
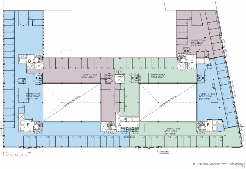
Siisti 537 m² toimisto Helsingin Kalasatamasta.
Osoite
Sörnäistenkatu 1, 00580 Helsinki
Tilatyyppi
Toimistotilaa
537 m2
Pohjapiirros
Kiinteistö
Sörnäistenkatu 1 on helposti saavutettavissa niin omalla autolla kuin julkisella liikenteellä.
Alue sopii etenkin nuorelle ja luovalle yrityksille, sillä alue kasvaa ja uudistuu lähivuosien aikana vielä lisää.
Kiinteistössä on korkeatasoiset palvelut, joihin lukeutuu mm. aulavastaanotto, lounasravintola, kuntosali sekä kattavat kokoustilat.
Talossa kaksi tavarahissiä ja tavarankuljetus tapahtuu sisäpihalta tai parkkihallista.
Kellarissa parkkihalli, josta mahdollista saada jonkin verran autopaikkoja.
Alue sopii etenkin nuorelle ja luovalle yrityksille, sillä alue kasvaa ja uudistuu lähivuosien aikana vielä lisää.
Kiinteistössä on korkeatasoiset palvelut, joihin lukeutuu mm. aulavastaanotto, lounasravintola, kuntosali sekä kattavat kokoustilat.
Talossa kaksi tavarahissiä ja tavarankuljetus tapahtuu sisäpihalta tai parkkihallista.
Kellarissa parkkihalli, josta mahdollista saada jonkin verran autopaikkoja.
Kulkuyhteydet
Metroasema 600 m, Raitiovaunupysäkki 400 m, Bussipysäkki 300 m, Juna-asema 3 km, Lentoasema 16,5 km
Vapautuu
Heti
Rakennusvuosi
1994
Kerros
4
Energiatehokkuusluokka
Ei lain edellyttämää energiatodistusta
Näkyvällä paikalla
Hissi
Ota yhteyttä
ScanReal Oy LKV
Opus Business Park
Hitsaajankatu 24
00810 Helsinki
info@scanreal.fi
Puh:
Näytä puhelinnumero
020 730 8830
Sopivat toimitilat yhdellä otolla!
Kartoitamme toimitilatarpeesi ja etsimme yrityksellesi parhaiten sopivat vapaat toimitilat. Koska vuokranantajat maksavat palvelumme, on tämä yrityksellesi veloituksetonta.
OTA YHTEYTTÄ - SOVI NÄYTTÖ!
Kaikki kohteemme eivät ole netissä, kerro tilatarpeesi niin kartoitamme vaihtoehdot.
Palvelumme on tilanhakijalle ilmainen
Pyydä lisätietoa
