Vuokrataan toimistotilat - Tampere
Visiokatu 1-3, Hermia, 33270 Tampere #10756835
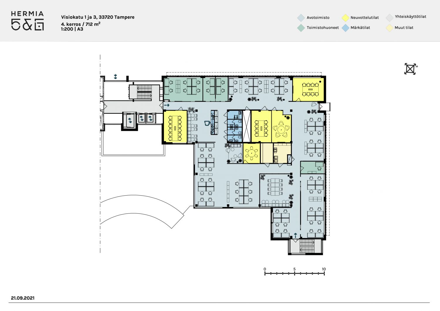
300-712 m2 siistiä toimistotilaa Hermiasta
Osoite
Visiokatu 1-3, 33270 Tampere
Tilatyyppi
Toimistotilaa
469 - 1884 m2
Kiinteistö
Vuokrataan siistiä ja laadukasta toimistotilaa Hermiasta!
Toimistotilaa on mahdollista pilkkoa tarvittaessa pienemmiksi tiloiksi, min kuitenkin n. 469 m2.
Vapaana on kolme toimistotilaa: 710 m2, 705 m2 ja 469 m2. Tilat voi vuokrata yhdessä tai erikseen. Tilat sijaitsevat Hermia 5:n toimistorakennuksen 5. kerroksessa. Kyseisestä toimistotiloista löytyy aulatilaa, runsaasti erikokoisia työhuoneita, iso neuvotteluhuone, kahvio, wc-tilat, kopiointihuone, atk- tila ja varastotila. Tilan ikkunoista avautuu upea metsämaisema. Toimistohuoneet ovat käytännöllisiä ja valoisia, ja helposti omien makumieltymysten ja tarpeiden mukaan kalustettavissa.
Kiinteistössä toimii useita eri kokoisia, kotimaisia ja kansainvälisiä yrityksiä. Kestävän kehityksen periaatteita on otettu huomioon mm. valaistustekniikassa ja vihreän sähkösopimuksen myötä.
Hervannan kaupunginosassa sijaitsevaan Hermiaan on helppo tulla autolla, pyörällä tai julkisilla ja se sijaitsee vain 15 min ajomatkan päässä Tampereen keskustasta. Hermia 5 ja 6 ovat osa aikoinaan Nokialle rakennettua kampusaluetta, joka on toiminut innovaatioiden alkulähteenä jo vuosikymmenten ajan. Yhteensä yli 30.000m² toimitilaa mitä erilaisimpiin tarpeisiin laboratorio- ja testitiloista perinteisempiin toimistotiloihin.
• Sodexon aulapalvelu
• Sodexon lounasravintola
• Kuntosali
• Pukuhuoneet ja suihkut
• Vuokrattavat neuvotteluhuoneet
• Tilavat sauna- ja oleskelutilat
• Kesäterassi
• Auditorio
• Lastauslaituri
Yksityisesittelyt sopimuksen mukaan joustavasti. Tervetuloa!
Toimistotilaa on mahdollista pilkkoa tarvittaessa pienemmiksi tiloiksi, min kuitenkin n. 469 m2.
Vapaana on kolme toimistotilaa: 710 m2, 705 m2 ja 469 m2. Tilat voi vuokrata yhdessä tai erikseen. Tilat sijaitsevat Hermia 5:n toimistorakennuksen 5. kerroksessa. Kyseisestä toimistotiloista löytyy aulatilaa, runsaasti erikokoisia työhuoneita, iso neuvotteluhuone, kahvio, wc-tilat, kopiointihuone, atk- tila ja varastotila. Tilan ikkunoista avautuu upea metsämaisema. Toimistohuoneet ovat käytännöllisiä ja valoisia, ja helposti omien makumieltymysten ja tarpeiden mukaan kalustettavissa.
Kiinteistössä toimii useita eri kokoisia, kotimaisia ja kansainvälisiä yrityksiä. Kestävän kehityksen periaatteita on otettu huomioon mm. valaistustekniikassa ja vihreän sähkösopimuksen myötä.
Hervannan kaupunginosassa sijaitsevaan Hermiaan on helppo tulla autolla, pyörällä tai julkisilla ja se sijaitsee vain 15 min ajomatkan päässä Tampereen keskustasta. Hermia 5 ja 6 ovat osa aikoinaan Nokialle rakennettua kampusaluetta, joka on toiminut innovaatioiden alkulähteenä jo vuosikymmenten ajan. Yhteensä yli 30.000m² toimitilaa mitä erilaisimpiin tarpeisiin laboratorio- ja testitiloista perinteisempiin toimistotiloihin.
• Sodexon aulapalvelu
• Sodexon lounasravintola
• Kuntosali
• Pukuhuoneet ja suihkut
• Vuokrattavat neuvotteluhuoneet
• Tilavat sauna- ja oleskelutilat
• Kesäterassi
• Auditorio
• Lastauslaituri
Yksityisesittelyt sopimuksen mukaan joustavasti. Tervetuloa!
Vapautuu
Kysy
Kerros
5
Ota yhteyttä
Logistila Oy
Kauppakatu 14, 33210 TAMPERE
Jukka Nukari
Näytä puhelinnumero
0440759789
Pyydä lisätietoa
