Vuokrataan toimistotilat - Espoo
Linnoitustie 11, Leppävaara, 02600 Espoo #10756624
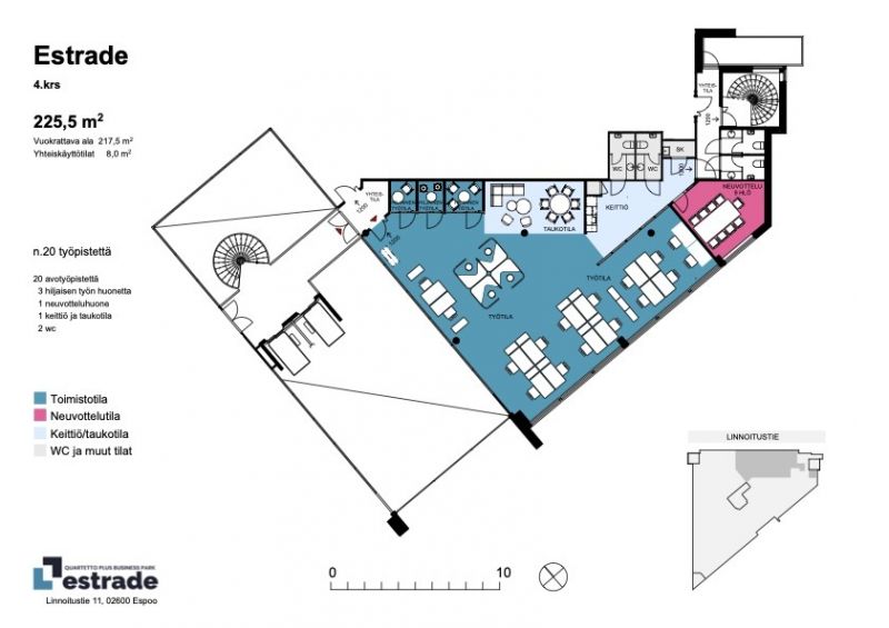
Toimistotilaa Quartetto Business Parkissa Espoossa.
Tämä tila on kooltaan 217,5m2 ja se sijaitsee Estrade-rakennuksen 4. kerroksessa. Lisäksi tilaan tulee 8m2 jyvityksiä, eli osuus yhteiskäyttöalueista. Tilaan kuuluu 3 hiljaisen työn huonetta ja yksi neuvotteluhuone. Tilassa on oma keittiö ja taukotila sekä kaksi wc:tä.
Quartetto Business Park sijaitsee Espoon Leppävaarassa ja se tarjoaa modernit toimitilat erikokoisten yritysten tarpeisiin. Kiinteistö sijaitsee kävelyetäisyydellä kauppakeskus Sellosta ja juna-asemasta. Kohteeseen on hyvät liikenneyhteydet kehäteitä ja Turunväylää pitkin. Quartetto Business Parkissa on aulapalvelu, hyvät ravintola- ja kahvilapalvelut, kokoustiloja ja auditorio, kuntosali sekä sauna- ja edustustilat. Vuokrattavissa myös autopaikkoja.
Kysy lisää numerosta 044 723 4700 tai info@bref.fi. Palvelumme on tilanhakijoille ilmainen.
Bureau Real Estate Finland Oy
Lars Sonckin kaari 16, 02600 Espoo
Näytä puhelinnumero
0447234700
Bureau Real Estate Finland Oy
https://www.bref.fi