Vuokrataan toimistotilat - Espoo
Sinimäentie 8 B, Mankkaa, 02180 Espoo #10756031
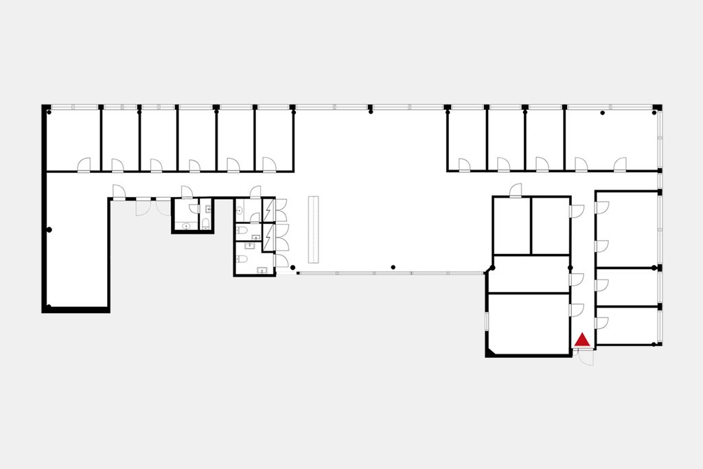
Hyväkuntoista toimistotilaa Espoon Sinimäessä.
Tämä 527m2 tila sijaitsee kiinteistön 5.kerroksessa. Tila koostuu huoneista, avotilasta sekä sosiaalitiloista.
Sinimäentie 8 B eli Sinihelmi sijaitsee Espoon Sinimäessä, Turunväylän varrella. Kiinteistössä on aulapalvelu, lounasravintola, vuokrattavia neuvottelutiloja ja saunatilat sekä runsaasti pysäköintipaikkoja.
Kysy lisää numerosta 044 723 4700 tai info@bref.fi. Palvelumme on tilanhakijoille ilmainen.
Osoite
Sinimäentie 8 B, 02180 Espoo
Tilatyyppi
Toimistotilaa
527 m2
Palvelut
Rakennuksessa aulapalvelu ja lounasravintola, saunatilat ja vuokrattavia neuvottelutiloja. Pihalla myös runsaasti pysäköintipaikkoja.
Vapautuu
Kysy
Kerros
5
Energiatehokkuusluokka
Ei lain edellyttämää energiatodistusta
Hissi
Ota yhteyttä
Bureau Real Estate Finland Oy
Lars Sonckin kaari 16, 02600 Espoo
Näytä puhelinnumero
0447234700
Bureau Real Estate Finland Oy
https://www.bref.fiPyydä lisätietoa
