Vuokrataan toimistotilat - Helsinki
Malminkaari 23, Malmi, 00700 Helsinki #10756024
Toimistotilaa hyvällä sijainnilla Malmilla.
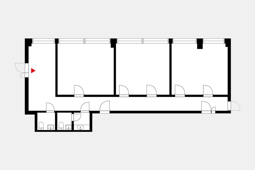
Kyseinen 103m2 toimistotila sijaitsee A-portaan 1. kerroksessa.
Malminkaari 23 on toimistokiinteistö hyvällä sijainnilla Helsingin Malmilla. Kohteessa on erikseen vuokrattavissa olevia neuvottelutiloja sekä kaksi eri saunatilaa. Kiinteistö on helposti saavutettavissa sekä omalla autolla että julkisella liikenteellä.
Kysy lisää numerosta 044 723 4700 tai info@bref.fi. Palvelumme on tilanhakijoille ilmainen.
Osoite
Malminkaari 23, 00700 Helsinki
Tilatyyppi
Toimistotilaa
103 m2
Palvelut
Malmin Nova -ostoskeskuksen ja lähiympäristön erinomaiset palvelut.
Vapautuu
Kysy
Kerros
1
Energiatehokkuusluokka
F
Ota yhteyttä
Bureau Real Estate Finland Oy
Lars Sonckin kaari 16, 02600 Espoo
Näytä puhelinnumero
0447234700
Bureau Real Estate Finland Oy
https://www.bref.fiPyydä lisätietoa
