Vuokrataan toimistotilat - Tampere
Hermiankatu (Tampere) 6-8, Hervanta, 33720 Tampere #10755631
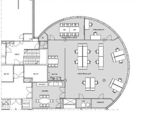
Hermiankatu 6-8 kiinteistön 2 krs. loistava tila. Iso sisääntulo aula, lasinen pyöreä valoisa isompi tila neukkari, keittiö ym.
Osoite
Hermiankatu (Tampere) 6-8, 33720 Tampere
Tilatyyppi
Toimistotilaa
209 m2
Kiinteistö
Hermiankadulta loistavalta sijainnilta 209m2 toimistotila. Samassa kerroksessa linkosuon catering lounas kahvila. Ala puolella vuokrattava auditorio ym..
Pysäköinti
Kadunvarsi paikkoja. kk- paikkoja. Parkkihallipaikat
Palvelut
Hyvät kattavat palvelut
Kulkuyhteydet
Hyvät. Ratikka pysäkki edessä
Vapautuu
27.10.2023
Kerros
2
Hissi
Ota yhteyttä
TopReal
Hietalahdenranta 17 B, 00180 Helsinki
Näytä puhelinnumero
09 6227 7852
Soita ja kysy lisää, tai tutustu www-sivuihimme!
http://www.topreal.fiPyydä lisätietoa
