Vuokrataan toimistotilat, tuotantotilat - Kaarina
Ahokylänkatu 3, 20780 Kaarina #10755453
Vuokrattavana hyvätasoiset 507 m2 toimisto ja tuotantotilat Kaarinan Krossin alueelta uudehkosta kiinteistöstä osoitteessa Ahokyläntie 3, Kaarina.
Tilakokonaisuus, jossa todella siistit katutason jäähdytettävät 132,5m2 toimistotilat, jossa avotilan lisäksi neljä toimistohuonetta sekä neuvottelutilat ja pieni keittiönurkkaus. Kahdet vessat.
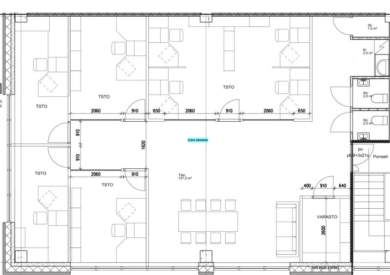
Lisäksi 2.krs tasokas siistit jäähdytettävät 144,5m2 toimistotilat, jossa avotilan lisäksi viisi toimistohuonetta sekä neuvottelutilat ja pieni keittiönurkkaus ja varastohuone.
Tilassa kahdet vessat
Katutaso toimiston yhteydessä 225m2 halli, jossa n. 40m2 parviratkaisu.
Sähkökäyttöinen nosto-ovi, jonka korkeus 4,5 metriä ja leveys 4 metriä.
Lisäksi erillinen käyntiovi. Vapaa korkeus 6 metriä. Hallissa vesipiste sekä hiekan-öljynerotus lattiakaivo.
Hallin puolella erilliset sos.tilat.
Kiinteistössä kamera- ja kulunvalvonta, lisäksi kiinteistöön tulee kuituyhteydet kahdelta tele-operaattorilta.
Merkittyjä autopaikkoja 12 kpl sisältyy vuokraan.
Iso piha, josta vuokrattavissa myös konttipaikkoja 20” ja 40” konteille.
Vapautuu kesäkuun alussa.
Kysyy lisätietoja
RHG Real Estate
Hämeenkatu 2 B20, 20500 Turku
Näytä puhelinnumero
020 734 4020
Tony Rosenblad
Hallituksen puheenjohtaja
Näytä puhelinnumero
+358 50 551 5375
