Vuokrataan varastotilat - Vantaa
Heidehofintie 2, Tikkurila, 01380 Vantaa #10755335
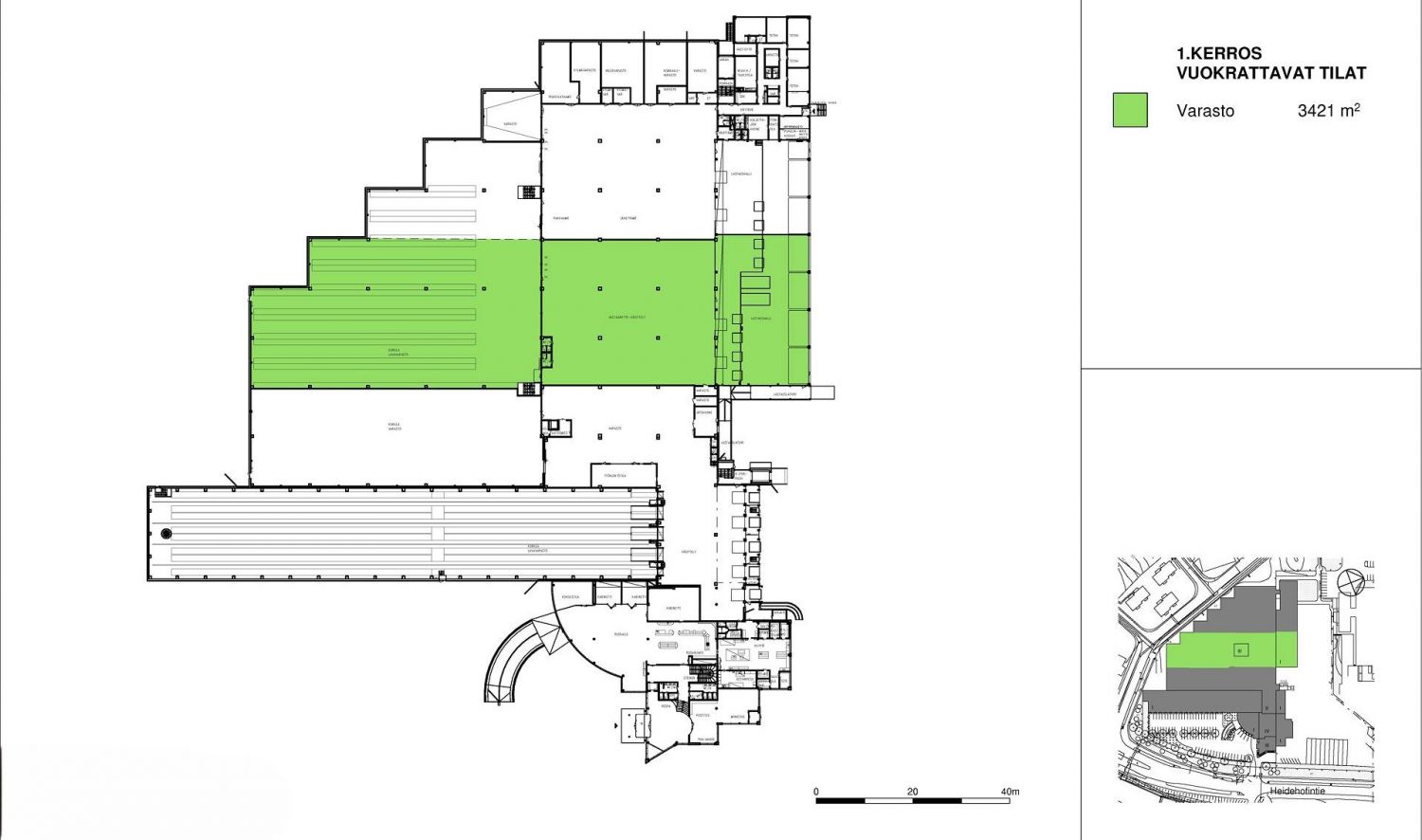
Vuokrataan varasto 3421 m2. 6 kpl lastaussiltoja, monipuoliset lastausmahdollisuudet eri kokoisille ajoneuvoillle. Varaston korkeus osittain 8.5 m, varasto on valmiiksi hyllytetty, pieni toimisto ja sosiaalitilat. Tilan lattian kantavuus 6000 kg/m2, ja tilassa on lisäksi hyvät purkualueet pienemmille ajoneuvoille.
Varasto- ja toimistokiinteistö on rakennettu vuonna 1982. Hyväkuntoiset varastotilat ovat muunneltavissa erilaisiin tarpeisiin. Lastaustoimintoja varten rakennuksessa on lastauslaiturit. Kiinteistön piha-alueella on mahdollista liikennöidä raskaalla kuljetuskalustolla. Tonttialue on aidattu.
Kiinteistö sijaitsee Vantaan Tikkurilassa aivan Kehä III:n lähettyvillä. Juna-asema sijaitsee lyhyehkön kävelymatkan päässä ja työmatka-autoilijoita palvelee talon oma pysäköintihalli ja pihapaikat. Tämä toimistorakennus on moderni ja tasokas kokonaisuus, jossa katutasossa on lounasravintolatilat sekä tyylikäs vastaanotto. Talon kellaritiloissa on tyylikäs saunaosasto, edustustilat sekä kuntosali.
Lisätietoja 020 7290 710. lisää kohteita www.premises.fi
Kohteella ei ole lain edellyttämää energiatodistusta.
Tämän kohteen omistaa Logicor Oy.Kerros: 1
Tikkurilan juna-asema n. 1,4 km.
Hyvät liikennöintiyhteydet lentoasemalle ja Vuosaaren satamaan.
Pysäköintipaikkoja on runsaasti kiinteistön autohallissa ja isolla piha-alueella.
CRE PREMISES
Puh. Näytä puhelinnumero 020 7290 710
Vantaankoskentie 14
01670 VANTAA
