Vuokrataan tuotantotilat, varastotilat - Kerava
Tervahaudankatu 7, 04200 Kerava #10755334
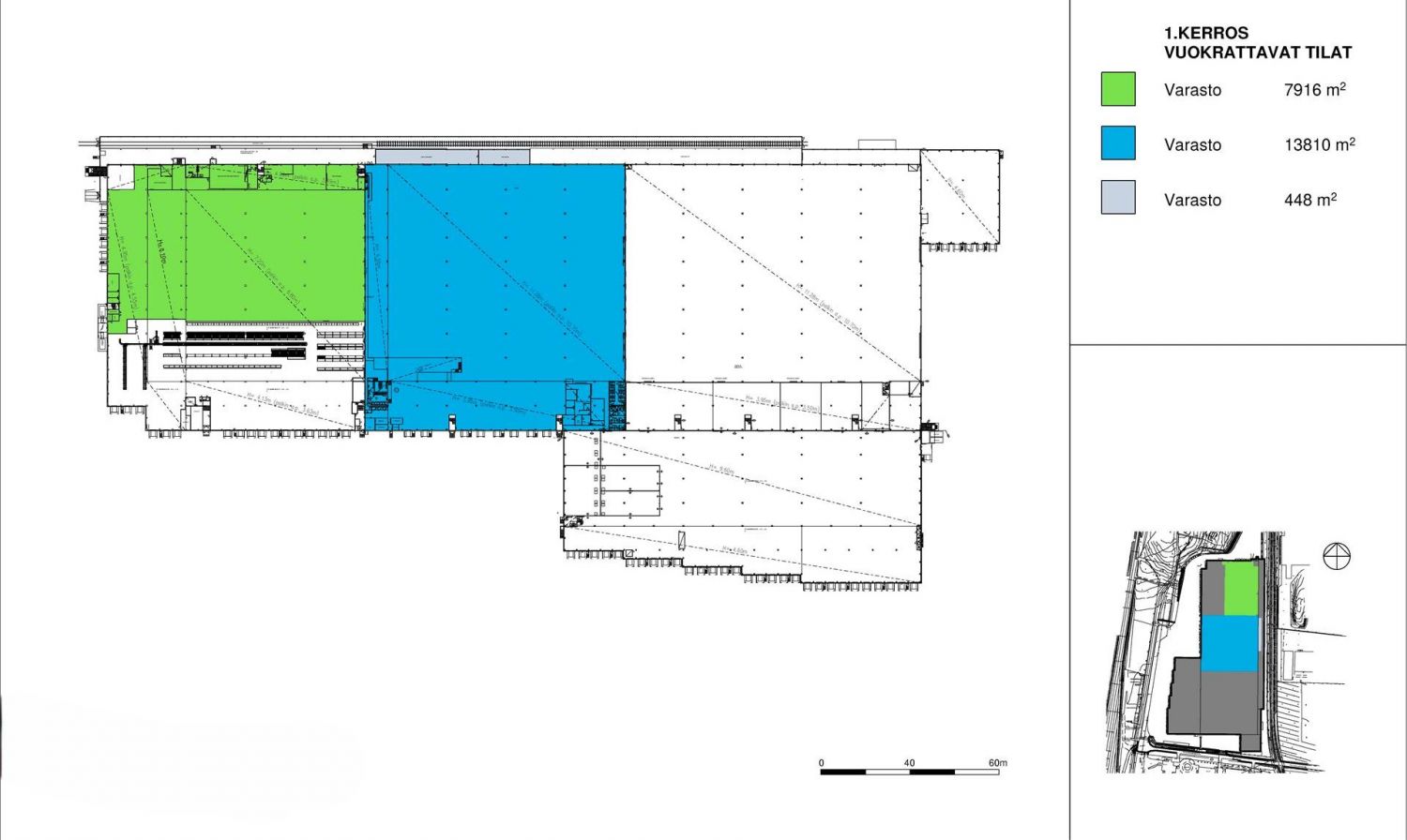
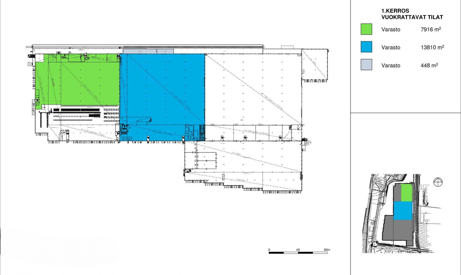
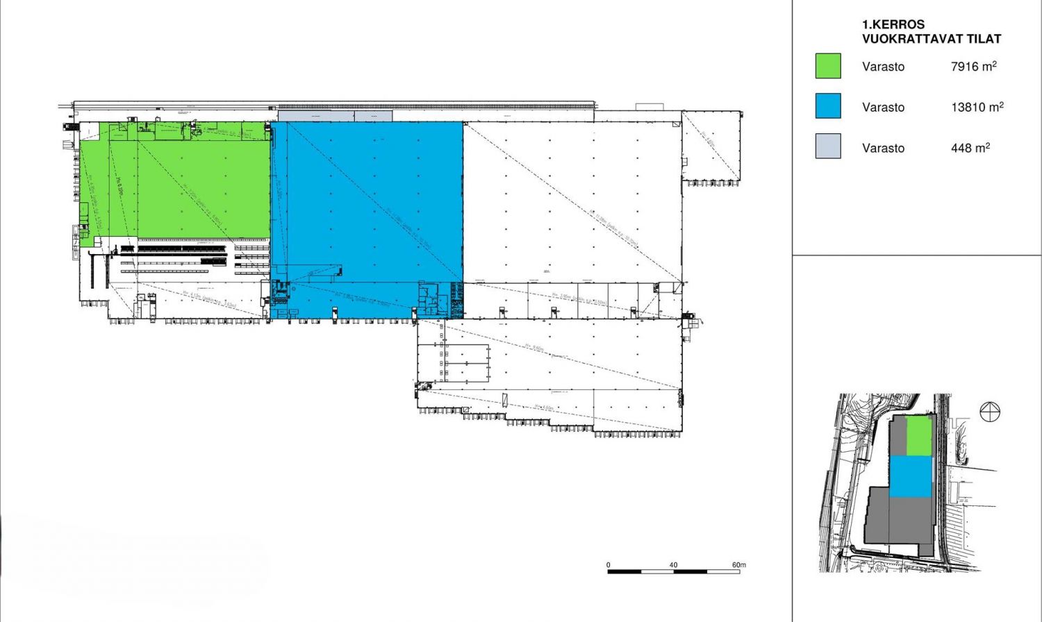
Vuokrattavana 6270 m2 - 13360 m2 varastotilaa logistiikkakeskuksesta.
Varastotilojen riittävä korkeus (7 m), runsas lastaustaskujen ja kuormaussiltojen lukumäärä, automaattiset nosto-ovet sekä tehokas keskitetty rakennusautomaatio. Tilavalla piha-alueella on runsaasti tilaa suurillekin kuljetusautoille ja trailereille. Kiinteistöä on laajennettu useaan otteeseen ja viimeksi vuonna 2010.
Kiinteistön sijainti Keravalla on logistisesti erinomainen junaradan ja Lahden moottoritien (E75) välittömässä läheisyydessä. Yhteys niin Helsingin keskustaan (31 km), lentoasemalle (20 km) kuin Vuosaaren satamaankin (23 km) on sujuva. Kiinteistölle on oma junaraideyhteys. Tämän kohteen omistaa Logicor Oy.
Lisätietoja 020 7290 710, lisää kohteita www.premises.fi
Kohteella ei ole lain edellyttämää energiatodistusta tai energialuokka ei tiedossa.Kerros: 1
CRE PREMISES
Puh. Näytä puhelinnumero 020 7290 710
Vantaankoskentie 14
01670 VANTAA
