Vuokrataan varastotilat - Kerava
Tervahaudankatu 7, 04200 Kerava #10755209
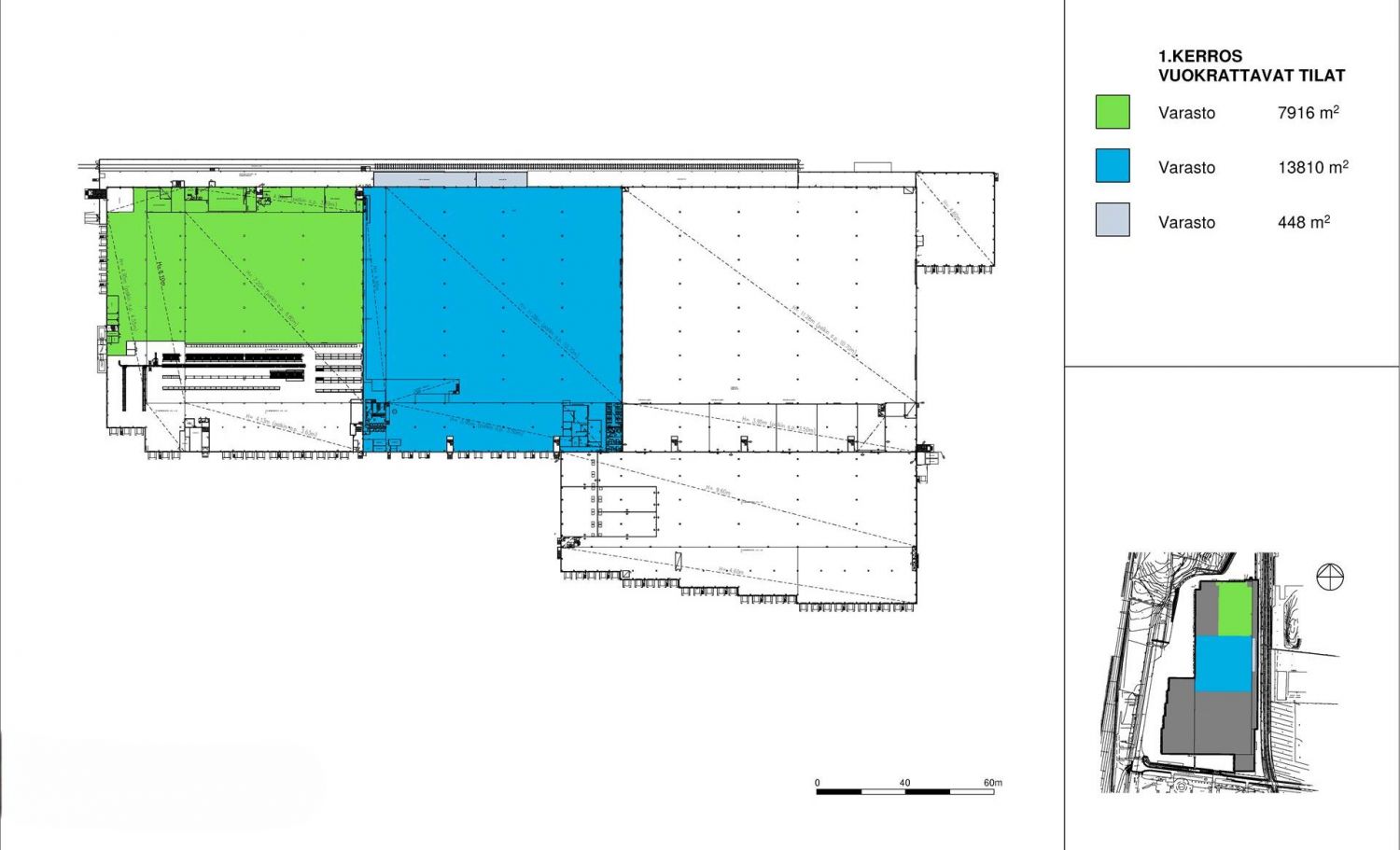
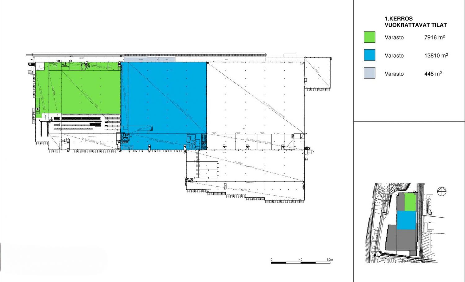
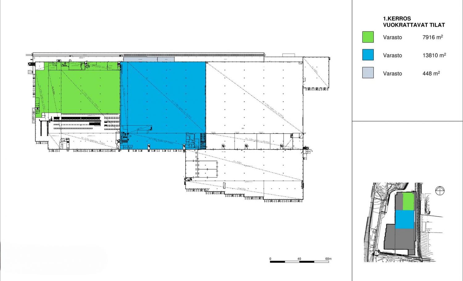
Vuokrataan logistiikkakeskuksesta valmiiksi hyllytettyä varastotilaa yhteensä 15 488 m2, josta 1 488 m2 sijaitsee varastoparvella. Kysy tarkempia tietoja kohteesta ja sen vapautumisesta. Varastotilojen korkeus on 11 m, tiloissa on sprinklerijärjestelmä, lattiakantavuus 5 000 kg/m2, runsaasti lastaustaskuja ja kuormaussiltoja sekä automaattiset nosto-ovet. Tila on mahdollista vuokrata valmiiksi hyllytettynä. Tilavalla piha-alueella on runsaasti tilaa suurillekin kuljetusautoille ja trailereille. Tämän kohteen omistaa Logicor Oy.
Lisätietoja 020 7290 710, lisää kohteita www.premises.fi
Kohteella ei ole lain edellyttämää energiatodistusta tai energialuokka ei tiedossa.Kerros: 1
CRE PREMISES
Puh. Näytä puhelinnumero 020 7290 710
Vantaankoskentie 14
01670 VANTAA
