Vuokrataan toimistotilat - Helsinki
Suolakivenkatu 1, Herttoniemi, 00810 Helsinki #10755179
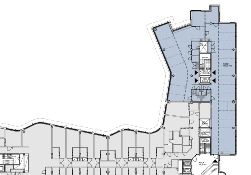
Monikäyttöistä toimitilaa Herttoniemenrannassa.
Tämä 456m2 toimistotila sijaitsee kiinteistön 4. kerroksessa. Kiinteistössä on alkamassa mittava saneeraus, jonka myötä myös vuokrattavien toimistotilojen tilasuunnitelmiin on mahdollista päästä vaikuttamaan. Toimistotiloista on mahdollista tehdä esimerkiksi lääkäri- tai kuntoutusasematoimintaan soveltuvia. Tilojen saneeraus valmistuu keväällä 2024.
Suolakivenkatu 1 on moderni toimistokiinteistö Herttoniemessä. Kiinteistössä on muun muassa aulapalvelu, lounasravintola, kokouspalveluita, saunaosasto, lämmin parkkihalli ja kauppakeskus Hertsi sijaitsee aivan vieressä. Kiinteistössä on toimistotilojen lisäksi Esperin hoivatoimintaa.
Kysy lisää numerosta 044 723 4700 tai info@bref.fi. Palvelumme on tilanhakijoille ilmainen.
Hissi
Bureau Real Estate Finland Oy
Lars Sonckin kaari 16, 02600 Espoo
Näytä puhelinnumero
0447234700
Bureau Real Estate Finland Oy
https://www.bref.fi