Vuokrataan toimistotilat, liiketilat - Helsinki
Itäkatu 11, Itäkeskus, 00930 Helsinki #10755027
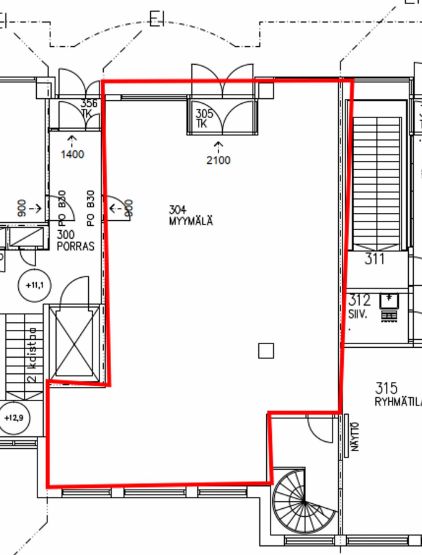
Vuokrattavana katutason toimisto-/liiketila.
Osoite
Itäkatu 11, 00930 Helsinki
Tilatyyppi
Toimistotilaa
165 m2
Liiketilaa
165 m2
Yhteensä
165 m2
Kiinteistö
Vuokrattavana toimisto-/liiketila. Tila on kahdessa kerroksessa: katutaso 101m2 ja alakerta 64 m2. Tila ei sovellu ravintolakäyttöön eikä elintarvikekaupaksi.
Sijainti
Itäkeskus, Helsinki
Pysäköinti
Itäkeskuksen parkkipaikat
Palvelut
Kauppakeskus Itis vieressä
Kulkuyhteydet
-Metro
-Bussi
-Oma auto
-Bussi
-Oma auto
Vapautuu
Heti
Kerros
1, kellari
Energiatehokkuusluokka
G2007
Katutasossa
Hissi
Ota yhteyttä
REALIUM OY LKV
Tammasaarenkatu 1, 00180 Helsinki
Vaihde:
Näytä puhelinnumero
010 326 346
Tuomo Mäkelä
tuomo.makela@realium.fi
p.
Näytä puhelinnumero
044 050 1158
Joel Keto
joel.keto@realium.fi
p.
Näytä puhelinnumero
045 317 0330
KAIKKI TILAVAIHTOEHDOT KERRALLA!
SOITA - MEILAA JA TILAA NÄYTTÖ!
Ilmainen palvelu tilanhakijoille.
Kartoitamme parhaat tilavaihtoehdot.
Kaikki kohteet eivät ole netissä.
Pyydä lisätietoa
