Vuokrataan toimistotilat - Helsinki
Cavoniuksen talo, Pohjoisesplanadi 21, Keskusta, 00100 Helsinki #10754956
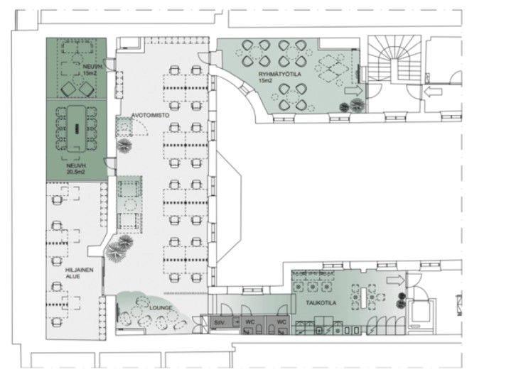
Vuokrataan C.L. Engelin piirtämästä Cavoniuksen arvotalosta (v.1821) ylimmän 3.kerroksen pääosin avotoimistotila Esplanadipuiston varrelta. Tila sijaitsee talon tyylikkäällä sisäpihalla ja se räätälöidään käyttäjän tarpeet ja toiveet huomioiden! Ota yhteyttä ja sovi esittely, vuokrauspalvelumme on tilanhakijoille maksuton. puh: 09 7745 100.
Osoite
Pohjoisesplanadi 21, 00100 Helsinki
Tilatyyppi
Toimistotilaa
272 m2
Kiinteistö
Liike ja toimistokiinteistö rv. 1821
Sijainti
Espan puiston äärellä.
Ympäristö
Ydinkeskusta
Pysäköinti
Maanalaiset parkkihallit.
Palvelut
Kaikki keskustan palvelut.
Kulkuyhteydet
Erinomaiset
Vapautuu
Heti
Rakennusvuosi
1821
Kerros
3 / 4
Energiatehokkuusluokka
Ei lain edellyttämää energiatodistusta
Näkyvällä paikalla
Hissi
Ota yhteyttä
Senaatin Notariaatti Oy LKV
Lämmittäjänkatu 4 A
FIN-00880 Helsinki
Tel:
Näytä puhelinnumero
+358 9 7745 100
Pyydä lisätietoa
