Vuokrataan liiketilat - Helsinki
kauppakeskus Easton, Kauppakartanonkatu 3, Itäkeskus, 00930 Helsinki #10754848
Eastonin katutasossa pian vapautuva liiketila esimerkiksi hyvinvointi- tai terveyspalveluita tuottavalle yritykselle. Vapautuu 31.5.
Osoite
Kauppakartanonkatu 3, 00930 Helsinki
Tilatyyppi
Liiketilaa
159 m2
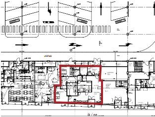
Pohjapiirros
Pysäköinti
Pysäköintipaikkoja yhteensä n. 1500 joista lähes puolet lämpimässä parkkihallissa.
Palvelut
Kauppakeskus Eastonin palvelut
Muuta
Tilassa on valmiina aulatila, 4 kpl tutkimus-/hoitohuoneita sekä hyvät taustatilat. Kaksi sisäänkäyntiä Kauppakartanonkadulta.
Vapautuu
01.06.2023
Rakennusvuosi
2017
Ota yhteyttä
Pyydä lisätietoa
