Vuokrataan toimistotilat - Helsinki
Hämeentie 13, Hakaniemi, 00530 Helsinki #10754837
Vuokrattavana tyylikästä, valoisaa toimistotilaa korkeilla ikkunoilla.
Osoite
Hämeentie 13, 00530 Helsinki
Tilatyyppi
Toimistotilaa
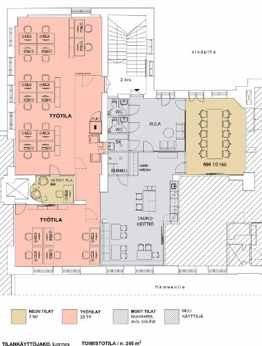
245 m2
Tilajako
Jaettavissa
yhdistettävissä
Kiinteistö
Vuokrattavana tyylikästä, valoisaa toimistotilaa korkeilla ikkunoilla. Kohteeseen on sisäänkäynti sekä Hämeentien puolelta että hienolta sisäpihalta. Tila on yhdistettävissä myös 450 m2 kokonaisuudeksi.
Sijainti
Hakaniemi, Helsinki
Pysäköinti
Autohallipaikat sijaitsevat kellarikerroksessa, joihin pääsee hissillä.
Palvelut
Alueen palvelut.
Kulkuyhteydet
-Raitiovaunu
-Bussi
-Metro
-Oma auto
-Bussi
-Metro
-Oma auto
Vapautuu
Heti
Kerros
2
Energiatehokkuusluokka
Ei lain edellyttämää energiatodistusta
Näkyvällä paikalla
Jaettavissa
Hissi
Ota yhteyttä
REALIUM OY LKV
Tammasaarenkatu 1, 00180 Helsinki
Vaihde:
Näytä puhelinnumero
010 326 346
Tuomo Mäkelä
tuomo.makela@realium.fi
p.
Näytä puhelinnumero
044 050 1158
Joel Keto
joel.keto@realium.fi
p.
Näytä puhelinnumero
045 317 0330
KAIKKI TILAVAIHTOEHDOT KERRALLA!
SOITA - MEILAA JA TILAA NÄYTTÖ!
Ilmainen palvelu tilanhakijoille.
Kartoitamme parhaat tilavaihtoehdot.
Kaikki kohteet eivät ole netissä.
Pyydä lisätietoa
