Vuokrataan tuotantotilat, varastotilat - Tampere
Etu-Hankkion katu 1, 33700 Tampere #10754699
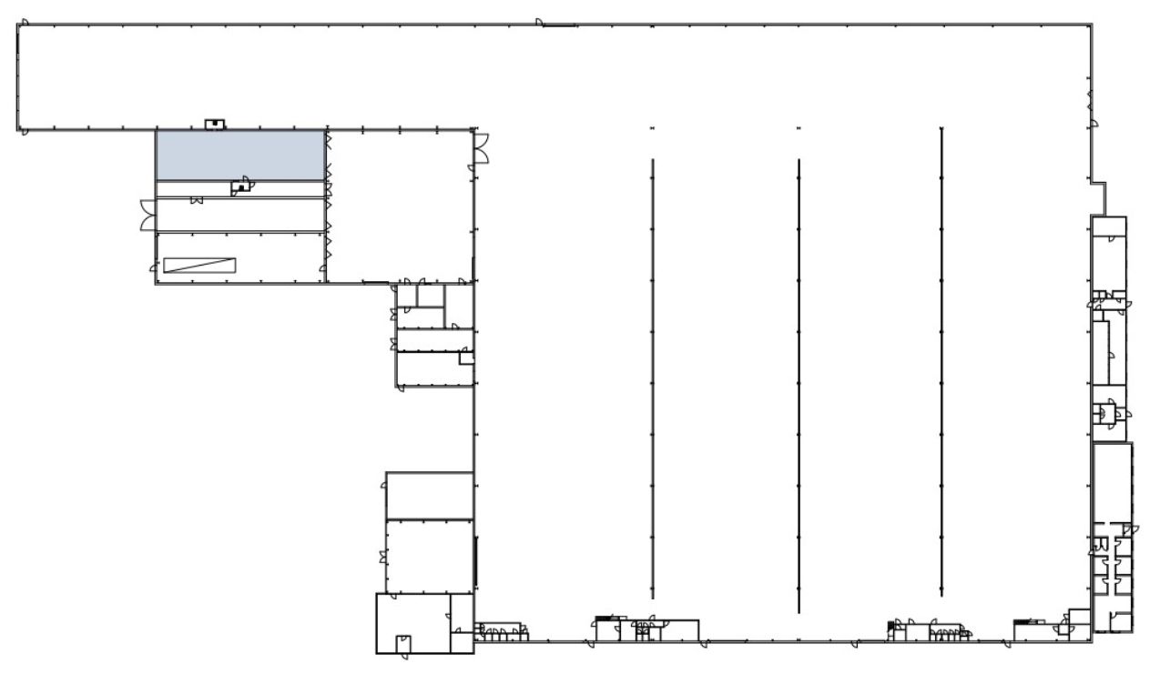
Vuokrattavana ensimmäisen kerroksen oma erillinen hallitila, entinen hiekkapuhaltamo.
Osoite
Etu-Hankkion katu 1, 33700 Tampere
Tilatyyppi
Tuotantotilaa
255 m2
Varastotilaa
255 m2
Yhteensä
255 m2
Kiinteistö
Vuokrattavana ensimmäisen kerroksen oma erillinen hallitila, entinen hiekkapuhaltamo. Tilassa on 1 lastausovi maantasossa, erillisiä kaappeja vuokrattavissa sosiaalitiloista. Tilan läheisyydessä on toimisto- ja sos. tilat.
Sijainti
Messukylä, Tampere
Pysäköinti
Kiinteistön pihassa on autopaikkoja.
Palvelut
Alueella on erillinen lounasravintolarakennus, joka palvelee alueen yrityksiä.
Kulkuyhteydet
-Bussi
-Oma auto
-Oma auto
Vapautuu
Heti
Kerros
1
Energiatehokkuusluokka
Ei lain edellyttämää energiatodistusta
Katutasossa
Näkyvällä paikalla
Ota yhteyttä
REALIUM OY LKV
Tammasaarenkatu 1, 00180 Helsinki
Vaihde:
Näytä puhelinnumero
010 326 346
Tuomo Mäkelä
tuomo.makela@realium.fi
p.
Näytä puhelinnumero
044 050 1158
Joel Keto
joel.keto@realium.fi
p.
Näytä puhelinnumero
045 317 0330
KAIKKI TILAVAIHTOEHDOT KERRALLA!
SOITA - MEILAA JA TILAA NÄYTTÖ!
Ilmainen palvelu tilanhakijoille.
Kartoitamme parhaat tilavaihtoehdot.
Kaikki kohteet eivät ole netissä.
Pyydä lisätietoa
